药业有限公司大门建筑设计方案设计CAD图纸
- 发布时间:2021-05-11
- 评论次数:0
- 浏览次数:0
- 文件大小:0.09 MB
- 收藏次数:0
-
文件名称:
附件-995887707898858555897.rar
建筑方案设计方案下载
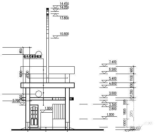
- 14.45米药业有限公司大门建筑设计方案设计CAD图纸
- 药业公司大门建筑施工CAD图纸.dwg
- 一份药业有限公司药品库房建筑结构方案设计CAD图纸
- 4层框架结构药业有限公司办公楼结构施工CAD图纸
- [CAD]厂区大门建筑设计方案设计图纸.dwg
- [CAD]大门建筑设计方案设计图纸1.dwg
- 12个大门建筑效果图纸(科技有限公司).
- [CAD]药业净化车间通风图纸.dwg
- 学校大门建筑方案设计CAD图纸.dwg
- 企业大门建筑方案设计图纸_cad
- 大型社区大门建筑方案设计CAD图纸
- 幼儿园大门建筑方案设计CAD图纸
- 4层框架结构药业有限公司办公楼结构CAD施工图纸(建筑图纸)(dwg)
- 欧式风格小区大门建筑设计施工CAD图纸
- 欧式弧形大门建筑设计施工CAD图纸
- 大学大门建筑设计施工CAD图纸
- 一份西南医院家属区大门建筑设计方案设计CAD图纸
- [CAD]西南医院传染科大门建筑设计方案设计施工图纸.dwg
- [CAD]药业公司给排水改造设计图纸.dwg
- 药业公司车间改造工程空调通风CAD图纸
全部评论
评论网友评论仅友表达个人看法,并不表明本站同意其观点,不得发布违反法律法规的内容!
