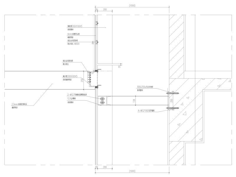
铝塑板幕墙节点图纸2019(CAD)
- 发布时间:2021-05-12
- 评论次数:0
- 浏览次数:0
- 文件大小:7.21 MB
- 收藏次数:0
- 
								文件名称: 附件-996977098800777909.dwg 附件-996977098800777909.dwg
								铝塑板幕墙节点下载
							
						- 明框玻璃幕墙及铝塑板幕墙节点CAD详图纸2019.dwg
- 铝塑板幕墙纵剖CAD节点详图纸
- 铝塑板幕墙楼顶纵剖CAD节点详图纸
- [构造详图]铝塑板幕墙节点CAD图纸PDF
- 铝塑板幕墙横剖节点详图纸cad
- 隐框幕墙及铝塑板幕墙节点构造CAD详图纸(十)(dwg)
- 隐框幕墙及铝塑板幕墙节点构造CAD详图纸(九)(dwg)
- 隐框幕墙及铝塑板幕墙节点构造CAD详图纸(八)(dwg)
- 隐框幕墙及铝塑板幕墙节点构造CAD详图纸(七)(dwg)
- 隐框幕墙及铝塑板幕墙节点构造CAD详图纸(六)(dwg)
- 隐框幕墙及铝塑板幕墙节点构造CAD详图纸(五)(dwg)
- 隐框幕墙及铝塑板幕墙节点构造CAD详图纸(四)(dwg)
- 隐框幕墙及铝塑板幕墙节点构造CAD详图纸(三)(dwg)
- 隐框幕墙及铝塑板幕墙节点构造CAD详图纸(二)(dwg)
- 隐框幕墙及铝塑板幕墙节点构造CAD详图纸(一)(dwg)
- 铝塑板幕墙节点构造CAD详图纸(幕墙伸缩缝)(dwg)
- 石材幕墙节点详图纸2019(CAD)
- 铝板幕墙节点详图纸2019(CAD)
- [构造详图]铝板幕墙节点详细设计CAD图纸_铝复合板_铝塑板等
- 一份铝塑板及玻璃幕墙节点详细设计CAD图纸
全部评论
						
							评论网友评论仅友表达个人看法,并不表明本站同意其观点,不得发布违反法律法规的内容!
						
						
 
	              	 
	              	