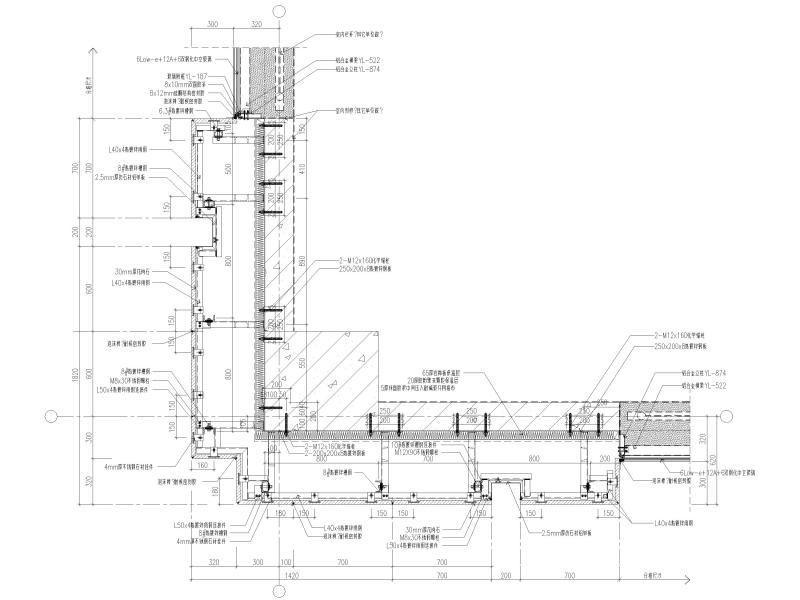
石材幕墙系统节点图纸(CAD)
- 发布时间:2021-05-12
- 评论次数:0
- 浏览次数:0
- 文件大小:1.5 MB
- 收藏次数:0
- 
								文件名称: 附件-996977098670877580.dwg 附件-996977098670877580.dwg
								石材幕墙图纸下载
							
						- 石材幕墙节点CAD详图纸(dwg)
- 石材幕墙压顶节点构造详图纸.
- 石材幕墙水平节点构造详图纸.
- 石材幕墙节点详图纸2019(CAD)
- 石材幕墙防水节点详图纸cad
- [CAD]背栓式石材标准节点(石材幕墙).dwg
- [CAD]石材幕墙标准横剖节点
- 石材幕墙节点构造(PPT,35页)
- 一份石材幕墙CAD节点图纸
- 一份石材幕墙节点详细设计CAD图纸
- 外墙面石材幕墙节点CAD图纸(dwg)
- 一份石材幕墙节点详细设计CAD图纸
- 一份石材幕墙节点dwg格式CAD图纸
- 一份石材幕墙节点详细设计CAD图纸
- 幕墙石材包方柱节点构造CAD详图纸(dwg)
- 幕墙石材包圆柱节点构造CAD详图纸(dwg)
- 石材幕墙纵剖节点构造CAD详图纸(dwg)
- 石材幕墙节点构造CAD详图纸(二)(dwg)
- 石材幕墙节点构造CAD详图纸(一)(dwg)
- 石材幕墙横向大样节点构造CAD详图纸(dwg)
全部评论
						
							评论网友评论仅友表达个人看法,并不表明本站同意其观点,不得发布违反法律法规的内容!
						
						
 
	              	 
	              	