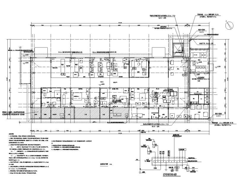
2层106厂房改造电气cad平面图及强电系统图
- 发布时间:2021-06-16
- 评论次数:0
- 浏览次数:0
- 文件大小:1.54 MB
- 收藏次数:0
- 
								文件名称: 附件-996588857957979078.rar 附件-996588857957979078.rar
								厂房改造电气平面图下载
							
						- 厂房框架改造工程(楼梯平面图)
- 某卷烟厂房改造工程电气施工图cad平面图及系统图
- 某丁类工业厂房改造电气施工图cad平面图及系统图
- 2层厂房办公室改造项目电气施工CAD图纸
- 老厂房的加固改造施工
- 旧厂房改造商业案例分析
- 香格里拉裙房电气改造项目,平面图
- 多层框架工业厂房全套电气图(整机厂房),平面图,系统图
- 厂房电气CAD图纸
- 厂房电气CAD图纸(dwg)
- 厂房电气CAD图纸(dwg)
- 厂房电气施工图纸.
- 厂房电气施工CAD图纸
- 电气线路改造合同.doc
- 工业厂房改造艺术园区设计PDF2020.pdf,平面图
- 旧厂房改造项目招标文件+施工图纸cad平面图
- 工业厂房水电暖改造CAD施工图纸(电气节能)(火灾自动报警)(TN-C-S)
- [CAD]净化厂房洁净空调改造图纸.dwg
- 实验厂房电气CAD施工图纸
- 厂房电气CAD施工图纸(dwg)
全部评论
						
							评论网友评论仅友表达个人看法,并不表明本站同意其观点,不得发布违反法律法规的内容!
						
						
 
	              	 
	              	 
	              	 
	              	 
	              	