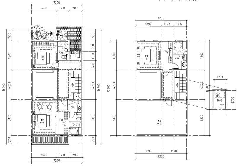
山地联排别墅197-194平户型图纸设计cad平面图
- 发布时间:2021-07-05
- 评论次数:0
- 浏览次数:0
- 文件大小:0.32 MB
- 收藏次数:0
-
文件名称:
附件-996557987758755757.dwg
联排别墅户型图下载
- [CAD]3层联排别墅户型图纸(201)
- 联排别墅户型分析
- [CAD]3层联排别墅组合户型图纸(屋顶平面图).dwg
- [CAD]3层坡地联排别墅户型图纸(半地下室).dwg
- 4层联排及叠拼式别墅建筑户型图纸.
- [CAD]低密度社区-联排别墅户型图纸设计
- [CAD]低密度社区-大联排别墅户型图纸设计
- 知名企业联排别墅户型图纸设计cad
- 山地别墅联排北露台172平户型图纸设计cad
- 联排别墅电气施工图纸.
- 联排别墅施工CAD图纸
- 中式联排别墅景观su模型
- 3层中式联排别墅建筑施工CAD图纸(八联排)
- 低层别墅联排三房两开间户型图纸CAD-160平米中国
- 上海院子140+130平米联排别墅户型图纸设计cad平面图
- 山地别墅紧凑型联排150平户型图纸设计2020cad
- 低层别墅联排三房两开间户型图CAD-160㎡,平面图
- 平地别墅强排户型图纸设计cad
- 别墅产品对比_叠拼 联排(41p)
- 联排别墅户型设计(PDF 38页).pdf
全部评论
评论网友评论仅友表达个人看法,并不表明本站同意其观点,不得发布违反法律法规的内容!
