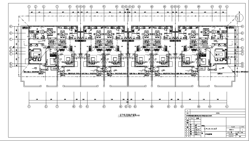
花园小区联排别墅电气施工CAD图纸
- 发布时间:2021-05-04
- 评论次数:0
- 浏览次数:0
- 文件大小:1.37 MB
- 收藏次数:0
-
文件名称:
附件-995857877959800050779.dwg
别墅电气施工图纸下载
- 联排别墅电气施工图纸.
- 某花园小区联排别墅电气施工图(2017年),平面图,系统图
- [双拼别墅]多元形式花园住宅楼小区方案(叠加、联排、双拼、多层等)
- 某联排别墅全套电气图纸cad
- 联排别墅施工CAD图纸
- 3层中式联排别墅建筑施工CAD图纸(八联排)
- 联排别墅户型分析
- [联排别墅]生态小区建筑规划建筑设计CAD施工图纸
- 一份小区联排别墅给排水设计CAD施工方案图纸
- 小区2层三联排新古典风格别墅建筑施工CAD图纸
- 联排花园洋房建筑方案设计CAD图纸
- 4层联排别墅建筑施工CAD图纸
- 联排别墅建筑CAD施工图纸
- 3层联排别墅建筑施工CAD图纸
- 3层联排别墅建筑施工CAD图纸2017
- 3层联排别墅建筑施工CAD图纸
- 3层欧美联排别墅建筑施工CAD图纸
- 3层独立联排别墅建筑施工CAD图纸
- 10套联排别墅给排水采暖电气施工设计CAD图纸(1)
- 联排别墅电气CAD施工图纸(入侵报警系统)
全部评论
评论网友评论仅友表达个人看法,并不表明本站同意其观点,不得发布违反法律法规的内容!
