您当前位置:首页 » 
	
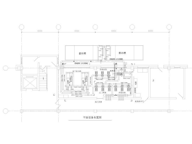
	办公楼建筑冰蓄冷中央空调机房施工图纸cad布置图
	
	
	办公楼建筑冰蓄冷中央空调机房施工图纸cad布置图
- 发布时间:2021-09-11
- 评论次数:0
- 浏览次数:0
- 文件大小:1.12 MB
- 收藏次数:0
- 
								文件名称: 附件-996899950798895987.dwg 附件-996899950798895987.dwg
								相关下载
							
						- 冰蓄冷原理方案设计CAD图纸(冰蓄冷机房)(dwg)
- 酒店冰蓄冷机房设计CAD图纸(dwg)
- 冰蓄冷中央空调系统PPT格式
- 酒店冰蓄冷机房设计CAD施工图纸(总共7张图纸).dwg
- 写字楼冰蓄冷中央空调工程施工CAD图纸
- 艺术中心冰蓄冷机房设计施工CAD图纸
- 6000平米冰蓄冷空调机房工程系统设计施工CAD图纸
- 研发生产项目冰蓄冷机房施工图纸cad平面图
- 贸易中心冰蓄冷机房系统流程CAD图纸(dwg)
- 华为研发生产项目冰蓄冷机房图纸(含自控原理图)
- 华侨城冰蓄冷中央空调系统全套施工图cad平面布置图
- 一份冰蓄冷空调机房工程系统设计CAD施工方案图纸
- 冰蓄冷空调机房全套设计dwg格式CAD施工图纸(阿尔西空调)
- 冰蓄冷空调系统的特点缺点PPT格式
- 冰蓄冷系统介绍(PPT+33P)
- 亚洲最大冰蓄冷详图,平面图
- 冰蓄冷空调系统设计PPT课件67页
- 冰蓄冷空调技术基础知识详解.doc
- 冰蓄冷负荷预测优化控制系统.pdf
- 制冷机房空调设计CAD施工大样图(冰蓄冷系统、冷却塔系统)(dwg)
全部评论
						
							评论网友评论仅友表达个人看法,并不表明本站同意其观点,不得发布违反法律法规的内容!
						
						
 
	              	 
	              	