豆豆网

 找回密码
 立即注册

QQ登录

只需一步,快速开始

查看: 1646|回复: 0

[CAD]21层度假区高层住宅楼电气图纸(A型)

[复制链接]

0

主题

0

帖子

1390

积分

超级版主

Rank: 8Rank: 8

积分
1390
发表于 2020-2-17 11:19:09 | 显示全部楼层 |阅读模式

该帖子包含附件可供参考学习和下载,您可以 搜索 更多您想要的资源


  • 建筑类别:住宅
  • 建筑高度类型:高层建筑
  • 建筑设计面积:14677.34平方米
  • 建筑地上层数:21层
  • 建筑地下层数:1层
  • 参考图纸:28张
  • 设计年代:近代
  • 负荷等级:一级
  • 防雷等级:第三类
  • 接地方式:TN-S
  • 强电设计:配变电所,低压配电,电气照明,建筑物防雷,接地安全
  • 弱电设计: 火灾自动报警系统 ,通信系统,有线电视和卫星接收系统

附件详情

  • 一、电气设计说明
  • 二、竖向配电系统图
  • 三、 配电箱系统
  • 四、风机控制原理图
  • 五、弱电系统图
  • 六、照明电力平面图
  • 七、 弱电平面图
  • 八、防雷接地竖向示意图
  • 九、防雷接地平面图

附件详情

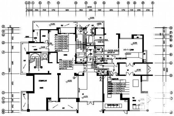
本稿件是某度假区A型高层住宅电气图纸,工程建筑为钢筋混凝土框架结构,地上主体21层,地下1层,占地面积755.68平方米,建筑高度83.2米,总建筑面积14677.34平方米。电气设计包含配电设计、电话系统、计算机网络系统、电气消防系统设计、有线电视、门禁系统设计、可视对讲系统、远程抄表系统、照明设计、插座布置、防雷接地系统设计。

第 1 张图
第 1 张图
第 2 张图
第 2 张图
第 3 张图
第 3 张图
第 4 张图
第 4 张图
以上是部分图纸截图,有些图框没有放大后再截图,可能截图里不清晰或者看不到内容,您可以在下载后查看具体内容

温馨提示:该资料由网友于2020-2-17 11:19:09上传分享,您可以下载该资料进行学习和参考,如有侵权内容或者违法行为,请及时联系站长删除,如有疑问,您可以在电气工程专区发帖交流相关知识。

附件2099v11edecccsdecf0fe221cs.rar

3.98 MB

下载  售价: 100 积分    赚积分

相关帖子

回复

使用道具 举报

您需要登录后才可以回帖 登录 | 立即注册

本版积分规则

QQ|联系我们|豆豆网 ( 苏ICP备20004746号-1 )

GMT+8, 2025-12-28 21:32 , Processed in 0.016754 second(s), 28 queries .

本站所有内容均由网友自主分享,如有侵权内容或者违法行为,请及时联系站长删除,本站将根据实际情况进行积分奖励!请查看:免责声明

快速回复 返回顶部 返回列表