豆豆网

 找回密码
 立即注册

QQ登录

只需一步,快速开始

查看: 1757|回复: 0

一份医院单层中医科室电气CAD施工图纸(二级负荷)

[复制链接]

0

主题

0

帖子

1358

积分

超级版主

Rank: 8Rank: 8

积分
1358
发表于 2020-2-17 13:29:02 | 显示全部楼层 |阅读模式

该帖子包含附件可供参考学习和下载,您可以 搜索 更多您想要的资源


  • 建筑类别:医疗建筑
  • 建筑高度:单层建筑
  • 建筑设计面积:730平方米
  • 建筑地上层数:1层
  • 建筑地下层数:1层
  • 设计阶段:施工图设计
  • 参考图纸:20张以下
  • 负荷等级:二级负荷
  • 有线广播:服务性
  • 接地方式:TN-S
  • 设计内容:电气设计说明, 配电箱系统 , 动力配电系统, 照明配电系统, 建筑物防雷接地, 综合布线系统, 保安闭路监视系统

附件详情

  • 一、电气设计说明
  • 二、动力平面图
  • 三、配电系统图
  • 四、 照明平面图
  • 五、插座平面图
  • 六、 弱电平面图

附件详情

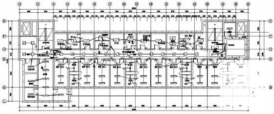
本稿件是医院中医科室电气施工图纸,电气设计包含配电系统设计、照明灯具布置、应急疏散指示、插座动力平面设计、接地系统设计、视频监控平面、病床呼叫系统设计、综合布线系统设计等。

第 1 张图
第 1 张图
第 2 张图
第 2 张图
第 3 张图
第 3 张图
第 4 张图
第 4 张图
以上是部分图纸截图,有些图框没有放大后再截图,可能截图里不清晰或者看不到内容,您可以在下载后查看具体内容

温馨提示:该资料由网友于2020-2-17 13:29:02上传分享,您可以下载该资料进行学习和参考,如有侵权内容或者违法行为,请及时联系站长删除,如有疑问,您可以在电气工程专区发帖交流相关知识。

附件2099v11edeccfcdcfce12sd1sc.rar

471.15 KB

下载  售价: 100 积分    赚积分

相关帖子

回复

使用道具 举报

您需要登录后才可以回帖 登录 | 立即注册

本版积分规则

QQ|联系我们|豆豆网 ( 苏ICP备20004746号-1 )

GMT+8, 2025-12-22 05:58 , Processed in 0.018211 second(s), 27 queries .

本站所有内容均由网友自主分享,如有侵权内容或者违法行为,请及时联系站长删除,本站将根据实际情况进行积分奖励!请查看:免责声明

快速回复 返回顶部 返回列表