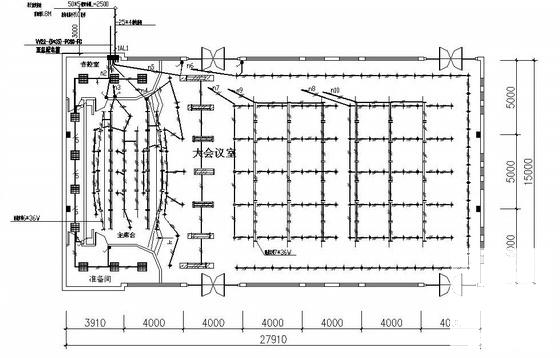
单层中学会议室装修电气CAD施工图纸(二级负荷)
- 发布时间:2021-04-27
- 评论次数:0
- 浏览次数:0
- 文件大小:0.24 MB
- 收藏次数:0
-
文件名称:
附件-995856855979859885985.rar
会议室装修施工图下载
- 中学会议室装修电气CAD施工图纸
- 中学单层食堂电气CAD施工图纸(三级负荷)
- 一份单层成片厂房电气CAD施工图纸(二级负荷)
- 单层游泳池电气CAD施工图纸(二级负荷).dwg
- 单层游泳池全套电气施工CAD图纸(二级负荷)
- 单层地下车库电气施工CAD图纸(二级负荷)
- [CAD]5层中学强弱电施工图纸(二级负荷)(电气照明)
- 一份二级负荷4层中学食堂电气CAD施工图纸
- 单层小学食堂电气设计CAD图纸(二级负荷)(消防报警系统)
- 办公楼会议室装修电气CAD图纸
- 3层餐厅装修电气CAD施工图纸(二级负荷)
- 时代广场装修电气设计CAD图纸(二级负荷)(配电系统)
- 消防中队3层办公楼装修电气CAD图纸(二级负荷)
- 中学单层食堂电气CAD图纸
- 中学4层实验图书综合楼装修电气CAD施工图纸(二级负荷)(电视监控系统)
- 一份医院单层中医科室电气CAD施工图纸(二级负荷)
- 一份单层污水处理厂电气CAD施工图纸(二级负荷)
- 住宅楼小区单层地下车库电气CAD施工图纸(二级负荷)
- [CAD图]会议室装修电气(dwg)
- [CAD]会议室装修电气设计.dwg
全部评论
评论网友评论仅友表达个人看法,并不表明本站同意其观点,不得发布违反法律法规的内容!
