| 
 该帖子包含附件可供参考学习和下载,您可以 搜索 更多您想要的资源   
 
  - 
   附件设计说明:有
  
 
  - 
   建筑类别:办公,餐饮,其他
  
 
  - 
   建筑高度类型:多层建筑
  
 
  - 
   建筑设计结构形式:钢筋混凝土结构
  
 
  - 
   建筑地上层数:3层
  
 
  - 
   图纸设计深度:施工图
  
 
  - 
   参考图纸:11张
  
 
  - 
   设计年代:近代
  
 
  - 
   生活供水设计:生活给水系统
  
 
  - 
   生产供水设计:热水系统
  
 
  - 
   排水设计:污水系统,废水系统
  
 
  - 
   消防设计:室内消火栓系统,灭火器配置系统
  
 
  - 
   供水设备:高位水箱,水泵站,稳压泵,水池
  
 
  - 
   供水方式:市政供水,高位水箱供水
  
 
  - 
   排水体制:污废合流
  
 
  - 
   排水技术:重力排水
  
 
  - 
   消火栓用水量室外(L/S):20
  
 
  - 
   消火栓用水量室内(L/S):15
  
 
  - 
   大样节点:水箱,厨房,卫生间,集水坑,设备房布置
  
 
  - 
   热水供应方式:集中热水供应
  
 
  - 
   项目所在地:天津
  
 
  
 
  
   附件详情
   
  
   - 
    资料目录
   
 
   - 
    设计说明
   
 
   - 
    卫生间,洗碗槽大样图
   
 
   - 
    一层给排水平面图
   
 
   - 
    底层给排水系统图
   
 
   - 
    二层给排水平面图
   
 
   - 
    三层给排水平面图
   
 
   - 
    屋面给排水平面图
   
 
   - 
    浴室给排水大样图
   
 
   - 
    厨房给排水大样图
   
 
   - 
    排水系统图
   
 
   - 
    给水系统图
   
 
   - 
    
     消防系统
    
    图
   
 
   
  
 
  
   附件详情
   
  
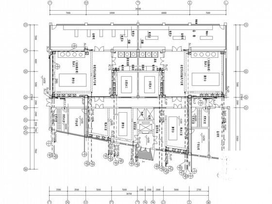
   该项目位于天津,为卫校食堂、浴室。共三层,本专业设计内容为该食堂的生活给水系统、热水系统、排水系统及消火栓给水系统。
    
   ,共11张图。
    
    
   
  
   
  
   
    一层浴室给排水
    
     平面布置图
    
    
   
    底层厨房给排水平面布置示意图
    
   
    浴室给水系统图
    
   
    一-三层厕、浴给排水平面布置图
    
   
  
 
第 1 张图   
第 2 张图   
第 3 张图   
第 4 张图   
第 5 张图   以上是部分图纸截图,有些图框没有放大后再截图,可能截图里不清晰或者看不到内容,您可以在下载后查看具体内容 
 
 温馨提示:该资料由网友于2020-2-17 13:29:18上传分享,您可以下载该资料进行学习和参考,如有侵权内容或者违法行为,请及时联系站长删除,如有疑问,您可以在给水排水专区发帖交流相关知识。
 
	
 |