豆豆网

 找回密码
 立即注册

QQ登录

只需一步,快速开始

查看: 1024|回复: 0

公路三孔过水箱涵CAD施工图纸(钢筋构造图).dwg

[复制链接]

0

主题

0

帖子

1193

积分

超级版主

Rank: 8Rank: 8

积分
1193
发表于 2020-9-28 06:19:24 | 显示全部楼层 |阅读模式

该帖子包含附件可供参考学习和下载,您可以 搜索 更多您想要的资源


附件详情

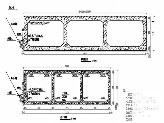
箱涵类型:三孔过水箱涵 净空高度:6米;填土高度:4米
设计荷载:公路-Ⅰ级 地基承载能力:≥230Kpa。
洞口建筑:洞口需要顺接河道,采用M10浆砌片石砌筑挡土墙形式。涵身建筑:涵身采用C30砼,其受力钢筋和构造钢筋采用HPB300和HRB335。箱涵通道采用就地浇筑工艺。全箱可采用两次浇筑,第一次浇至底板内壁以上30cm,第二次浇筑剩余部分。两次浇筑的接缝处应按施工缝处理。本箱涵为过水涵用途,洞口须设洞口铺砌和隔水墙。

【图纸内含】
1-2.0m×2.0m箱涵沉降缝及防水设计图
一般构造图
箱涵涵身钢筋构造图
涵身钢筋汇总表
单个斜交排架钢筋量
单个正交排架钢筋量
箍筋大样示意图
涵身变形缝构造
平面图、剖面图
……
共计13张

箱涵沉降缝及防水设计图

配筋图

涵身正、斜截面图

涵身钢筋断面图

箱涵构造图

第 1 张图
第 1 张图
第 2 张图
第 2 张图
第 3 张图
第 3 张图
第 4 张图
第 4 张图
第 5 张图
第 5 张图
第 6 张图
第 6 张图
以上是部分图纸截图,有些图框没有放大后再截图,可能截图里不清晰或者看不到内容,您可以在下载后查看具体内容

温馨提示:该资料由网友于2020-9-28 06:19:24上传分享,您可以下载该资料进行学习和参考,如有侵权内容或者违法行为,请及时联系站长删除,如有疑问,您可以在建筑施工专区发帖交流相关知识。

附件2099v11ecwsccfcd1ccceec.rar

1.14 MB

下载  售价: 100 积分    赚积分

相关帖子

回复

使用道具 举报

您需要登录后才可以回帖 登录 | 立即注册

本版积分规则

QQ|联系我们|豆豆网 ( 苏ICP备20004746号-1 )

GMT+8, 2025-12-28 03:35 , Processed in 0.015626 second(s), 27 queries .

本站所有内容均由网友自主分享,如有侵权内容或者违法行为,请及时联系站长删除,本站将根据实际情况进行积分奖励!请查看:免责声明

快速回复 返回顶部 返回列表