豆豆网

 找回密码
 立即注册

QQ登录

只需一步,快速开始

查看: 1728|回复: 0

30层河流沿岸多栋高层住宅楼电气CAD施工图纸(火灾自动报警系统)

[复制链接]

0

主题

0

帖子

1579

积分

超级版主

Rank: 8Rank: 8

积分
1579
发表于 2020-2-17 13:54:03 | 显示全部楼层 |阅读模式

该帖子包含附件可供参考学习和下载,您可以 搜索 更多您想要的资源


  • 建筑类别:住宅,商业,其他
  • 建筑高度类型:高层建筑
  • 建筑设计结构形式:其他结构
  • 建筑地上层数:30层
  • 图纸设计深度:施工图
  • 参考图纸:85张
  • 设计年代:近代
  • 负荷等级:三级
  • 防雷等级:第三类
  • 接地方式:TN-C-S
  • 项目所在地:河南
  • 强电设计:低压配电,电气照明,建筑物防雷,接地安全,其它
  • 弱电设计: 火灾自动报警系统 ,通信系统,有线电视和卫星接收系统,呼应信号及信息显示

附件详情

  • 1、电气设计说明
  • 2、电气系统图
  • 3、电信系统
  • 4、有线电视系统
  • 5、可视对讲系统
  • 6、火灾自动报警系统
  • 7、防雷接地系统
  • 8、照明系统
  • 9、插座平面图
  • 10、屋顶 防雷平面图
  • 11、基础接地平面图
  • 12、 照明平面图
  • 13、配电平面图

附件详情

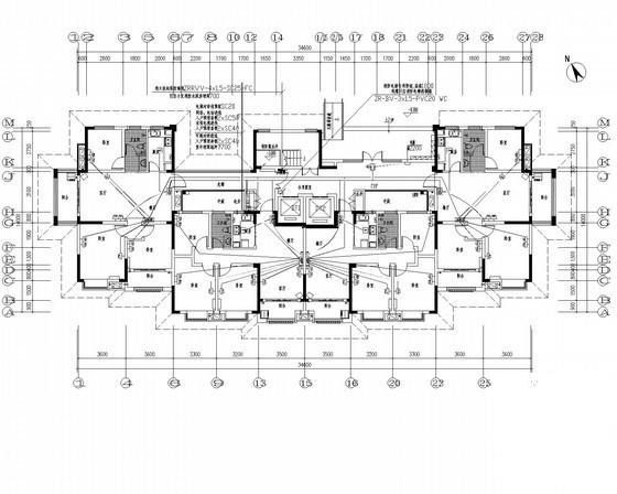
该附件为[河南]河流沿岸多栋高层住宅楼电气施工图纸,共85张。
项目概要:SH1#楼:建筑设计结构形式现浇楼板,框架结构。20#楼:地上十七层,建筑高度49.30米,建筑面积6583平米,为二类高层住宅。13#楼:地上三十层,建筑高度88.50米。18#楼:地上十八层,建筑高度52.50米,建筑面积6967.58平米,为二类高层住宅。16#楼:该项目建筑层数为30层,建筑高度为87.30m。
设计范围:一般动力、照明配电系统,综合布线系统,有线电视系统,防雷接地系统,电信系统,可视对讲系统和火灾自动报警系统。
......
,总共85张。

插座平面图

一层照明平面图

弱电系统图

竖向配电系统图

配电系统图(二)

第 1 张图
第 1 张图
第 2 张图
第 2 张图
第 3 张图
第 3 张图
第 4 张图
第 4 张图
第 5 张图
第 5 张图
第 6 张图
第 6 张图
以上是部分图纸截图,有些图框没有放大后再截图,可能截图里不清晰或者看不到内容,您可以在下载后查看具体内容

温馨提示:该资料由网友于2020-2-17 13:54:03上传分享,您可以下载该资料进行学习和参考,如有侵权内容或者违法行为,请及时联系站长删除,如有疑问,您可以在电气工程专区发帖交流相关知识。

附件2099v11edecf0f121e0eed2f1s.rar

6.11 MB

下载  售价: 100 积分    赚积分

相关帖子

回复

使用道具 举报

您需要登录后才可以回帖 登录 | 立即注册

本版积分规则

QQ|联系我们|豆豆网 ( 苏ICP备20004746号-1 )

GMT+8, 2025-12-28 07:16 , Processed in 0.018208 second(s), 28 queries .

本站所有内容均由网友自主分享,如有侵权内容或者违法行为,请及时联系站长删除,本站将根据实际情况进行积分奖励!请查看:免责声明

快速回复 返回顶部 返回列表