豆豆网

 找回密码
 立即注册

QQ登录

只需一步,快速开始

查看: 2699|回复: 0

一份单位业务用房智能化设计电气设计CAD施工图纸

[复制链接]

0

主题

0

帖子

1096

积分

超级版主

Rank: 8Rank: 8

积分
1096
发表于 2020-2-17 13:54:12 | 显示全部楼层 |阅读模式

该帖子包含附件可供参考学习和下载,您可以 搜索 更多您想要的资源


  • 建筑类别:商业,工业建筑
  • 建筑高度类型:多层建筑
  • 建筑地上层数:64层
  • 图纸设计深度:施工图
  • 参考图纸:4张
  • 弱电设计: 火灾自动报警系统 ,入侵报警系统,视频监控系统,出入口控制系统,停车场管理系统,综合布线系统,其它

附件详情

  • 1、 电气设计 说明
  • 2、配电系统图
  • 3、综合布线系统
  • 4、弱电系统图
  • 5、视频监控系统图
  • 6、视频监控系统图
  • 7、红外报警系统图
  • 8、门禁系统结构图
  • 9、停车场系统结构图
  • 10、BA系统 平面布置图
  • 11、信息机房工程地板布置图
  • 12、信息机房工程设备布置图
  • 13、配电系统平面图
  • 14、综合布线系统平面布置图
  • 15、红外报警系统平面布置图
  • 16、视频监控系统平面布置图

附件详情

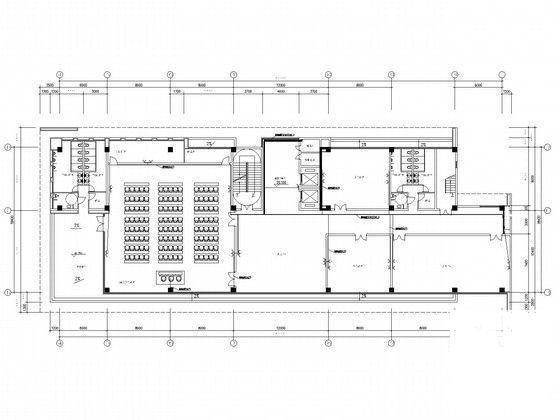
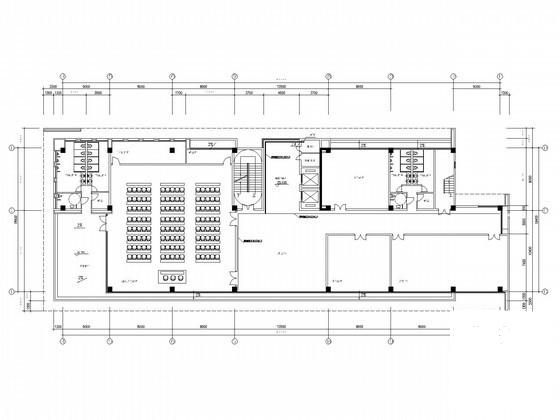
该附件是某单位业务用房智能化设计全套电气施工图纸,总共64张。
本项目是业务用房建筑楼高6层面,地下一层。
本项目设计内容包括综合布线系统、有线电视系统、综合安防系统(含闭路电视系统、防盗报警系统)、一卡通管理系统(含门禁系统、人员出入管理、停车场管理系统、巡更系统)、背景音乐及公共广播系统、多功能会议系统、BAS楼宇机电设备监控系统、机房工程。

门禁系统平面布置图

综合布线平面布置图

视频监控系统平面布置图

电气设计单位 - 1
第 1 张图
电气设计单位 - 2
第 2 张图
电气设计单位 - 3
第 3 张图
电气设计单位 - 4
第 4 张图
电气设计单位 - 5
第 5 张图
以上是部分图纸截图,有些图框没有放大后再截图,可能截图里不清晰或者看不到内容,您可以在下载后查看具体内容

温馨提示:该资料由网友于2020-2-17 13:54:12上传分享,您可以下载该资料进行学习和参考,如有侵权内容或者违法行为,请及时联系站长删除,如有疑问,您可以在电气工程专区发帖交流相关知识。

附件2099v11edecswcfd0fc22c22ff.rar

3.74 MB

下载  售价: 100 积分    赚积分

电气设计单位相关帖子

回复

使用道具 举报

您需要登录后才可以回帖 登录 | 立即注册

本版积分规则

QQ|联系我们|豆豆网 ( 苏ICP备20004746号-1 )

GMT+8, 2025-12-25 19:58 , Processed in 0.017256 second(s), 27 queries .

本站所有内容均由网友自主分享,如有侵权内容或者违法行为,请及时联系站长删除,本站将根据实际情况进行积分奖励!请查看:免责声明

快速回复 返回顶部 返回列表