豆豆网

 找回密码
 立即注册

QQ登录

只需一步,快速开始

查看: 3340|回复: 0

穿条式隔热铝合金明框单元幕墙节点构造CAD详图纸.dwg

[复制链接]

0

主题

0

帖子

902

积分

超级版主

Rank: 8Rank: 8

积分
902
发表于 2020-9-29 18:32:22 | 显示全部楼层 |阅读模式

该帖子包含附件可供参考学习和下载,您可以 搜索 更多您想要的资源


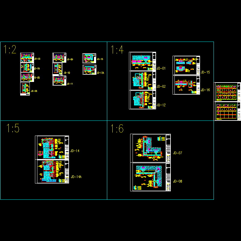
某穿条式隔热铝合金明框单元幕墙节点构造详图   该资料包含:   设计说明、幕墙索引展开图、明框单元幕墙横剖节点、明框单元幕墙纵剖节点、开启扇横剖节点、开启扇纵剖节点、百叶窗横剖节点、百叶窗纵剖节点、阳角横剖节点、阴角横剖节点、铝板幕墙横剖节点、铝板幕墙纵剖节点、单层玻璃横剖节点、单层玻璃纵剖节点、明框单元幕墙封边节点、明框单元幕墙封边节点、明框单元幕墙封顶、封底节点、连接件安装节点、明框单元幕墙排水节点、型材截面图共21张图纸。

ml.dwg
ml.dwg
最终节点.dwg
最终节点.dwg
说明.dwg
说明.dwg
以上是部分图纸截图,有些图框没有放大后再截图,可能截图里不清晰或者看不到内容,您可以在下载后查看具体内容

温馨提示:该资料由网友于2020-9-29 18:32:22上传分享,您可以下载该资料进行学习和参考,如有侵权内容或者违法行为,请及时联系站长删除,如有疑问,您可以在基础知识专区发帖交流相关知识。

附件2099v11ecwsce02cfc01ccw.rar

1.11 MB

下载  售价: 100 积分    赚积分

明框幕墙节点构造相关帖子

回复

使用道具 举报

您需要登录后才可以回帖 登录 | 立即注册

本版积分规则

QQ|联系我们|豆豆网 ( 苏ICP备20004746号-1 )

GMT+8, 2025-10-19 22:23 , Processed in 0.043872 second(s), 28 queries .

本站所有内容均由网友自主分享,如有侵权内容或者违法行为,请及时联系站长删除,本站将根据实际情况进行积分奖励!请查看:免责声明

快速回复 返回顶部 返回列表