豆豆网

 找回密码
 立即注册

QQ登录

只需一步,快速开始

查看: 2796|回复: 0

一份25层科技信息综合楼电气CAD施工图纸(一级负荷)

[复制链接]

0

主题

0

帖子

963

积分

超级版主

Rank: 8Rank: 8

积分
963
发表于 2020-2-17 18:55:42 | 显示全部楼层 |阅读模式

该帖子包含附件可供参考学习和下载,您可以 搜索 更多您想要的资源


  • 建筑类别:办公
  • 建筑高度类型:高层建筑
  • 建筑设计结构形式:钢筋混凝土结构
  • 建筑设计面积:47531.50平方米
  • 建筑地上层数:25层
  • 建筑地下层数:1层
  • 图纸设计深度:施工图
  • 参考图纸:67张
  • 设计年代:近代
  • 地下室用途:车库,设备用房
  • 节点大样:防雷接地
  • 负荷等级:一级
  • 防雷等级:第二类
  • 接地方式:TN-S
  • 项目所在地:江西
  • 强电设计: 供配电系统 ,配变电所,低压配电,电气照明,建筑物防雷,接地安全

附件详情

  • 1、电气设计说明
  • 2、建筑防雷说明
  • 3、高压系统图
  • 4、低压系统图
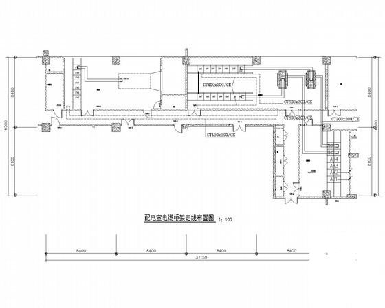
  • 5、配电室电缆桥架走线布置图
  • 6、配电室布置图
  • 7、配电室基础接地平面图
  • 8、生活水泵控制柜配电系统图
  • 9、地下一层空调机房配电系统图
  • 10、竖向系统图
  • 11、 配电箱系统
  • 12、 照明平面图
  • 13、插座配电平面图
  • 14、防雷接地平面图

附件详情

该附件是[江西]二十五层科技信息综合楼全套电气施工图,总共67张。地下1层,地上25层,地下一层为设备和车库,局部为人防工程平时为车库,总建筑面积约为 47531.50m,建筑高度为98.4米,为一类高层。
电气设计包含10KV供配电及10/0.4KV变电所;照明配电;动力配电;防雷与接地系统设计等。

高压系统图

配电室电缆桥架走线布置图

三层照明平面图

竖向系统图

四层照明平面图

消防水泵控制柜配电系统图

七,十二,十四,十六,十八层照明平面图

科技综合楼电气 - 1
第 1 张图
科技综合楼电气 - 2
第 2 张图
科技综合楼电气 - 3
第 3 张图
科技综合楼电气 - 4
第 4 张图
科技综合楼电气 - 5
第 5 张图
科技综合楼电气 - 6
第 6 张图
以上是部分图纸截图,有些图框没有放大后再截图,可能截图里不清晰或者看不到内容,您可以在下载后查看具体内容

温馨提示:该资料由网友于2020-2-17 18:55:42上传分享,您可以下载该资料进行学习和参考,如有侵权内容或者违法行为,请及时联系站长删除,如有疑问,您可以在电气工程专区发帖交流相关知识。

附件2099v11edecd1dfse10s1sd2d1.rar

2.69 MB

下载  售价: 100 积分    赚积分

科技综合楼电气相关帖子

回复

使用道具 举报

您需要登录后才可以回帖 登录 | 立即注册

本版积分规则

QQ|联系我们|豆豆网 ( 苏ICP备20004746号-1 )

GMT+8, 2025-12-27 02:17 , Processed in 0.015410 second(s), 27 queries .

本站所有内容均由网友自主分享,如有侵权内容或者违法行为,请及时联系站长删除,本站将根据实际情况进行积分奖励!请查看:免责声明

快速回复 返回顶部 返回列表