豆豆网

 找回密码
 立即注册

QQ登录

只需一步,快速开始

查看: 2693|回复: 0

国内加油站电气设计CAD施工图纸

[复制链接]

0

主题

0

帖子

963

积分

超级版主

Rank: 8Rank: 8

积分
963
发表于 2020-2-17 23:16:44 | 显示全部楼层 |阅读模式

该帖子包含附件可供参考学习和下载,您可以 搜索 更多您想要的资源


  • 建筑设计面积:156平方米
  • 图纸设计深度:施工图
  • 参考图纸:11张
  • 设计年代:近代
  • 负荷等级:二级
  • 防雷等级:第三类
  • 接地方式:TN-S
  • 强电 设计:低压配电,电气照明,建筑物防雷,接地安全
  • 弱电设计:视频监控系统,有线电视和卫星接收系统,智能化集成

附件详情

本加油站为在原有站区的基础上进行改造。原有罐区拆除重建,汽油罐共3个,柴油罐2个,总容积150米,属二级加油站。新建站房为砖混结构单层建筑,耐火等级为一级;设计使用年限50年,抗震设防烈度8度。
设计范围包括:
强电部分: 供配电系统 、照明及动力配电布置、接地布置、屋顶避雷;
弱电部分:有线电视、加油站管理系统、视频监控系统及平面布置。


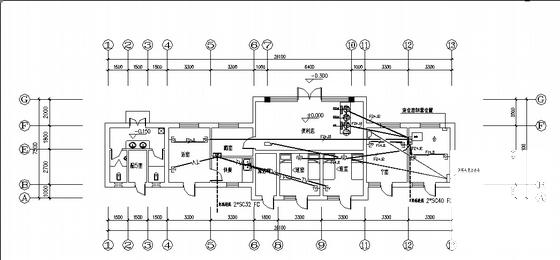
电气抗震设计 - 1
第 1 张图
电气抗震设计 - 2
第 2 张图
电气抗震设计 - 3
第 3 张图
电气抗震设计 - 4
第 4 张图
以上是部分图纸截图,有些图框没有放大后再截图,可能截图里不清晰或者看不到内容,您可以在下载后查看具体内容

温馨提示:该资料由网友于2020-2-17 23:16:44上传分享,您可以下载该资料进行学习和参考,如有侵权内容或者违法行为,请及时联系站长删除,如有疑问,您可以在电气工程专区发帖交流相关知识。

附件2099v11edeccwfdf2sf0sc22dc.rar

603.52 KB

下载  售价: 100 积分    赚积分

电气抗震设计相关帖子

回复

使用道具 举报

您需要登录后才可以回帖 登录 | 立即注册

本版积分规则

QQ|联系我们|豆豆网 ( 苏ICP备20004746号-1 )

GMT+8, 2025-12-28 01:12 , Processed in 0.165285 second(s), 28 queries .

本站所有内容均由网友自主分享,如有侵权内容或者违法行为,请及时联系站长删除,本站将根据实际情况进行积分奖励!请查看:免责声明

快速回复 返回顶部 返回列表