豆豆网

 找回密码
 立即注册

QQ登录

只需一步,快速开始

查看: 2552|回复: 0

一份20层综合楼给排水CAD施工图纸

[复制链接]

0

主题

0

帖子

1096

积分

超级版主

Rank: 8Rank: 8

积分
1096
发表于 2020-2-17 23:21:07 | 显示全部楼层 |阅读模式

该帖子包含附件可供参考学习和下载,您可以 搜索 更多您想要的资源


  • 附件设计说明:有
  • 建筑类别:办公,商业,酒店,餐饮
  • 建筑高度类型:高层建筑
  • 建筑设计面积:31141.09平方米
  • 建筑地上层数:20层
  • 建筑地下层数:1层
  • 图纸设计深度:施工图
  • 参考图纸:25张
  • 设计年代:近代
  • 地下室用途:设备用房
  • 生活供水设计:生活给水系统
  • 排水设计:雨水系统
  • 消防设计:室外消火栓系统,室内消火栓系统,喷淋系统,气体灭火系统,灭火器配置系统
  • 供水设备:水泵站
  • 供水方式:市政供水,分区供水,无负压供水
  • 供水分区:三区
  • 排水体制:污废合流
  • 排水技术:重力排水
  • 雨水重现期:3年
  • 火灾危险等级:中危险级Ⅰ级
  • 消火栓用水量室外(L/S):30
  • 消火栓用水量室内(L/S):40
  • 大样节点:卫生间
  • 热水供应方式:热泵热水供应
  • 项目所在地:河北

附件详情

  • 给排水设计说明及图例
  • 地下室喷淋、排水平面图及泵房设备定位图
  • 地下室消火栓平面图及水泵房管道平面图
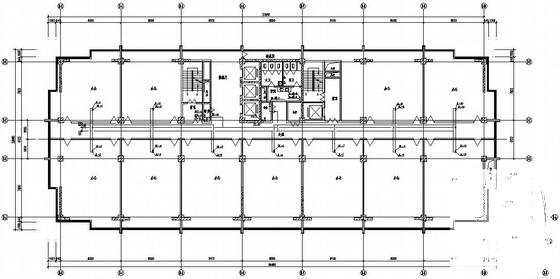
  • 一~二十层给排水平面图
  • 三层消防及通气管平面图
  • 四层消防平面图
  • 十三层消防平面图
  • 电梯机房给排水平面图
  • 公共卫生间给排水大样图及管井大样
  • 水泵房给排水系统图
  • 给水系统图
  • 热水系统图
  • 排水系统图
  • 消火栓、喷淋系统图

附件详情

本稿件为[河北]二十层综合楼给排水全套施工图纸,该项目位于河北邯郸市,包括1栋高层综合楼及地下设备房和一栋四层商业楼,综合楼建筑面积为:31141.09m2,建筑高度84m。综合楼地下室设有变配电室、水泵房和换热站及其附属用房等,水泵房包括消火栓泵、喷淋泵、消防水池(储存室内)、生活水无负压设备。
设计范围:室内给水系统、排水系统、屋面雨水系统、消火栓系统、自动喷水灭火系统、空调凝结水系统及建筑灭火器的配置等的设计。
,共25张图纸。

十三层给排水平面图

地下室喷淋、排水平面图及泵房设备定位图

水泵房给排水系统图

二层公共卫生间及管井给排水大样图

第 1 张图
第 1 张图
第 2 张图
第 2 张图
第 3 张图
第 3 张图
第 4 张图
第 4 张图
第 5 张图
第 5 张图
以上是部分图纸截图,有些图框没有放大后再截图,可能截图里不清晰或者看不到内容,您可以在下载后查看具体内容

温馨提示:该资料由网友于2020-2-17 23:21:07上传分享,您可以下载该资料进行学习和参考,如有侵权内容或者违法行为,请及时联系站长删除,如有疑问,您可以在给水排水专区发帖交流相关知识。

附件2099v11edc0fwcccccws1e2ccc.rar

3.13 MB

下载  售价: 100 积分    赚积分

相关帖子

回复

使用道具 举报

您需要登录后才可以回帖 登录 | 立即注册

本版积分规则

QQ|联系我们|豆豆网 ( 苏ICP备20004746号-1 )

GMT+8, 2025-12-28 21:11 , Processed in 0.015211 second(s), 28 queries .

本站所有内容均由网友自主分享,如有侵权内容或者违法行为,请及时联系站长删除,本站将根据实际情况进行积分奖励!请查看:免责声明

快速回复 返回顶部 返回列表