豆豆网

 找回密码
 立即注册

QQ登录

只需一步,快速开始

查看: 3130|回复: 0

一份一类高层商业建筑群强弱电CAD施工图纸(塔楼28层、裙房4层)

[复制链接]

0

主题

0

帖子

1640

积分

超级版主

Rank: 8Rank: 8

积分
1640
发表于 2020-2-18 09:01:35 | 显示全部楼层 |阅读模式

该帖子包含附件可供参考学习和下载,您可以 搜索 更多您想要的资源


  • 建筑类别:住宅,商业
  • 建筑高度类型:高层建筑
  • 建筑设计面积:42767.53平方米
  • 建筑地上层数:28层
  • 建筑地下层数:1层
  • 图纸设计深度:施工图
  • 参考图纸:53张
  • 设计年代:近代
  • 地下室用途:车库,设备用房
  • 负荷等级:一级
  • 防雷等级:第三类
  • 接地方式:TN-C,TN-C-S
  • 项目所在地:江苏
  • 强电设计:低压配电,电气照明,建筑物防雷,接地安全
  • 弱电设计: 火灾自动报警系统

附件详情

  • 1、设计说明
  • 2、配电干线系统图
  • 3、弱电干线系统图
  • 4、配电箱系统图
  • 5、火灾自动报警设计说明
  • 6、火灾自动报警系统图
  • 7、火灾自动报警系统图
  • 8、车库及裙房配电干线图
  • 9、地下照明平面图
  • 10、照明平面图
  • 11、机房层照明平面图
  • 12、地下一层插座及配电干线平面图
  • 13、插座及配电干线平面图
  • 14、机房层及屋面插座及配电干线平面图
  • 15、地下一层 弱电平面图
  • 16、弱电平面图
  • 17、地下一层火灾报警平面图
  • 18、四层火灾报警平面图
  • 19、机房层及屋面火灾报警平面图
  • 20、 防雷平面图
  • 21、基础接地平面图
  • 22、电井大样图
  • 23、变配电室10kV高压配电系统图

附件详情

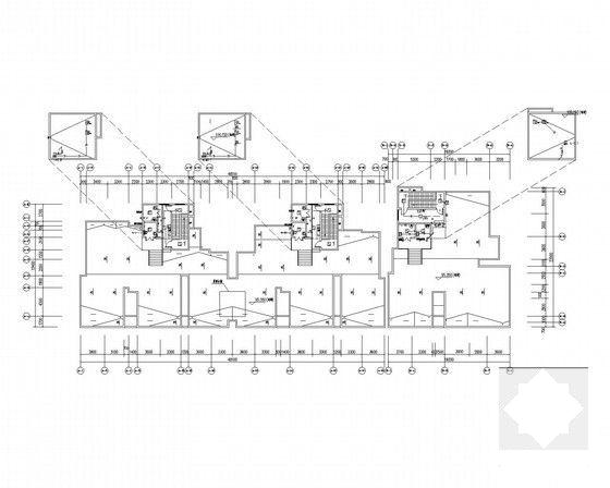
该附件是[江苏]一类高层商业建筑群强弱电全套施工图纸(塔楼28层、裙房4层),共53张。
该项目为一类高层商住楼。总占地面积:6405平方米,总建筑设计面积:42767.53平方米。建筑高度为96.70米;裙房建筑高度至屋面为12.65米。地下室一层,为汽车库、非机动车库设备及管理用房,地上裙房四层,功能是商业,塔楼二十八层,为住宅。采用框架剪力墙结构该项目属于一类普通高层住宅建筑。
设计内容包括:1)220/380V配电系统及照明系统;2)建筑物防雷、接地系统及安全措施(接地平面详见地下车库接地平面);3)有线电视系统(仅预留管);4)电话系统(仅预留管);5)网络布线系统(仅预留管);6)安全技术防范系统(仅预留管);7)电视监控系统(仅预留管);8)表具数据远传系统(仅预留管);9)火灾报警及联动控制系统等等。

二层照明平面图

五层~十二层照明平面图

机房层及屋面插座及配电干线平面图

车库及裙房配电干线图

机房火灾报警平面图

四层弱电平面图

火灾自动报警及消防联动控制系统图

第 1 张图
第 1 张图
第 2 张图
第 2 张图
第 3 张图
第 3 张图
第 4 张图
第 4 张图
第 5 张图
第 5 张图
第 6 张图
第 6 张图
以上是部分图纸截图,有些图框没有放大后再截图,可能截图里不清晰或者看不到内容,您可以在下载后查看具体内容

温馨提示:该资料由网友于2020-2-18 09:01:35上传分享,您可以下载该资料进行学习和参考,如有侵权内容或者违法行为,请及时联系站长删除,如有疑问,您可以在商业建筑专区发帖交流相关知识。

附件2099v11edecsed202sccs2fsec.rar

9.41 MB

下载  售价: 100 积分    赚积分

相关帖子

回复

使用道具 举报

您需要登录后才可以回帖 登录 | 立即注册

本版积分规则

QQ|联系我们|豆豆网 ( 苏ICP备20004746号-1 )

GMT+8, 2025-11-26 13:37 , Processed in 0.015901 second(s), 27 queries .

本站所有内容均由网友自主分享,如有侵权内容或者违法行为,请及时联系站长删除,本站将根据实际情况进行积分奖励!请查看:免责声明

快速回复 返回顶部 返回列表