豆豆网

 找回密码
 立即注册

QQ登录

只需一步,快速开始

查看: 2381|回复: 0

短支框架结构2层独栋别墅建筑施工CAD图纸

[复制链接]

0

主题

0

帖子

1351

积分

超级版主

Rank: 8Rank: 8

积分
1351
发表于 2020-1-23 23:35:49 | 显示全部楼层 |阅读模式

该帖子包含附件可供参考学习和下载,您可以 搜索 更多您想要的资源


  • 别墅设计类别:独栋别墅
  • 建筑高度类型:多层建筑
  • 建筑设计结构形式:钢筋混凝土结构
  • 钢筋混凝土结构:框架
  • 图纸设计深度:施工图
  • 项目所在地:湖南
  • 图纸设计风格:北美风格
  • 图纸设计流派:新古典
  • 图纸设计格式:天正建筑CAD 7.0,CAD2000
  • 参考图纸:12张
  • 建筑设计面积:660平方米
  • 建筑高度:10.55m
  • 地上层数:2层
  • 地下层数:1层
  • 设计效果图:无

附件详情

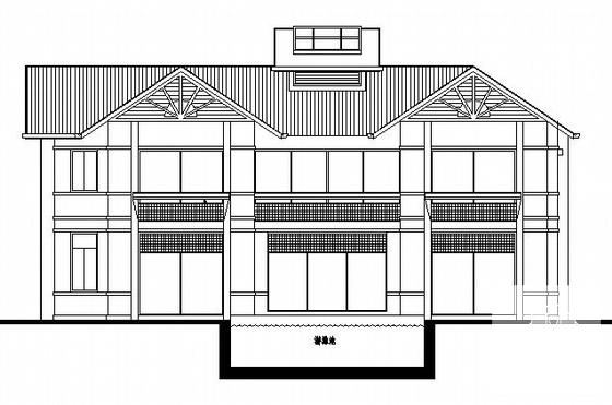
这份参考资料为湖南某二层美式别墅 建筑施工
总建筑设计面积:660平方米,建筑设计结构形式:短支框架结构,层数:2 层,含1层半地下室,檐口高度:10.55 米
这份参考资料包括门窗表、门窗详图、各层建筑平面图、立面、剖面图、卫生间详图、 楼梯详图 、墙身大样、檐口作法、部分构件大样等,共12张图纸
设计功能包括:

2

2

3

3

4

框架结构独栋别墅 - 1
第 1 张图
框架结构独栋别墅 - 2
第 2 张图
框架结构独栋别墅 - 3
第 3 张图
框架结构独栋别墅 - 4
第 4 张图
以上是部分图纸截图,有些图框没有放大后再截图,可能截图里不清晰或者看不到内容,您可以在下载后查看具体内容

温馨提示:该资料由网友于2020-1-23 23:35:49上传分享,您可以下载该资料进行学习和参考,如有侵权内容或者违法行为,请及时联系站长删除,如有疑问,您可以在别墅建筑专区发帖交流相关知识。

附件2099v11ed1w12ddefdd21d2fc1.rar

1.31 MB

下载  售价: 100 积分    赚积分

框架结构独栋别墅相关帖子

回复

使用道具 举报

您需要登录后才可以回帖 登录 | 立即注册

本版积分规则

QQ|联系我们|豆豆网 ( 苏ICP备20004746号-1 )

GMT+8, 2025-12-21 08:47 , Processed in 0.016577 second(s), 28 queries .

本站所有内容均由网友自主分享,如有侵权内容或者违法行为,请及时联系站长删除,本站将根据实际情况进行积分奖励!请查看:免责声明

快速回复 返回顶部 返回列表