豆豆网

 找回密码
 立即注册

QQ登录

只需一步,快速开始

查看: 3540|回复: 0

一份4层宿舍楼强弱电CAD施工图纸(电气设计说明)

[复制链接]

0

主题

0

帖子

1075

积分

超级版主

Rank: 8Rank: 8

积分
1075
发表于 2020-2-18 09:10:24 | 显示全部楼层 |阅读模式

该帖子包含附件可供参考学习和下载,您可以 搜索 更多您想要的资源


  • 建筑类别:住宅,餐饮
  • 建筑高度类型:多层建筑
  • 建筑设计面积:5279.42平方米
  • 建筑地上层数:4层
  • 图纸设计深度:施工图
  • 参考图纸:15张
  • 防雷等级:第三类
  • 火灾保护分级:二级
  • 项目所在地:湖南
  • 强电设计:低压配电,电气照明,建筑物防雷,接地安全
  • 弱电设计: 火灾自动报警系统

附件详情

  • 附件详情:
  • 1、电气设计说明
  • 2、配电系统图
  • 3、配电干线系统图
  • 4、 照明平面图
  • 5、 弱电平面图
  • 6、防雷、接地平面图

附件详情

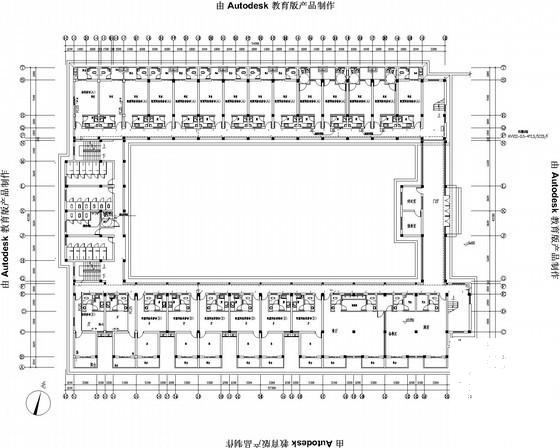
该附件是[湖南]某宿舍楼强弱电全套施工图纸,总共15张。
该项目建筑位于湖南省,为四层建筑,建筑面积为5279.42m ,建筑物主体高度为13.95m,耐火等级为二级。
该项目设计内容包括:1)配电系统;照明系统;建筑物防雷接地系统;2)弱电埋管及消火栓设计等。

一层弱电埋管及消火栓平面图

配电系统图

配电干线系统图

宿舍楼弱电设计 - 1
第 1 张图
宿舍楼弱电设计 - 2
第 2 张图
宿舍楼弱电设计 - 3
第 3 张图
宿舍楼弱电设计 - 4
第 4 张图
以上是部分图纸截图,有些图框没有放大后再截图,可能截图里不清晰或者看不到内容,您可以在下载后查看具体内容

温馨提示:该资料由网友于2020-2-18 09:10:24上传分享,您可以下载该资料进行学习和参考,如有侵权内容或者违法行为,请及时联系站长删除,如有疑问,您可以在电气工程专区发帖交流相关知识。

附件2099v11edece1wc0fff0cecce0.rar

797.58 KB

下载  售价: 100 积分    赚积分

宿舍楼弱电设计相关帖子

回复

使用道具 举报

您需要登录后才可以回帖 登录 | 立即注册

本版积分规则

QQ|联系我们|豆豆网 ( 苏ICP备20004746号-1 )

GMT+8, 2025-12-30 02:49 , Processed in 0.016286 second(s), 28 queries .

本站所有内容均由网友自主分享,如有侵权内容或者违法行为,请及时联系站长删除,本站将根据实际情况进行积分奖励!请查看:免责声明

快速回复 返回顶部 返回列表