豆豆网

 找回密码
 立即注册

QQ登录

只需一步,快速开始

查看: 1632|回复: 0

[CAD]7层办公楼强弱电系统竣工图纸(电气设计说明)

[复制链接]

0

主题

0

帖子

1577

积分

超级版主

Rank: 8Rank: 8

积分
1577
发表于 2020-2-28 09:58:13 | 显示全部楼层 |阅读模式

该帖子包含附件可供参考学习和下载,您可以 搜索 更多您想要的资源


  • 建筑类别:办公
  • 建筑高度类型:高层建筑
  • 建筑设计结构形式:钢筋混凝土结构
  • 建筑设计面积:8721.86平方米
  • 建筑地上层数:7层
  • 建筑地下层数:1层
  • 图纸设计深度:竣工图
  • 参考图纸:46张
  • 设计年代:近代
  • 负荷等级:二级
  • 防雷等级:第二类
  • 接地方式:TN-S
  • 项目所在地:广东
  • 强电设计:低压配电,电气照明,建筑物防雷,接地安全
  • 弱电设计:出入口控制系统,通信系统,有线电视和卫星接收系统,信息网络系统

附件详情

  • 1、 电气设计 说明
  • 2、配电系统图
  • 3、弱电系统图
  • 4、 照明平面图
  • 5、插座动力平面图
  • 6、电话网络平面图
  • 7、门禁系统平面图
  • 8、 防雷接地 平面图

附件详情

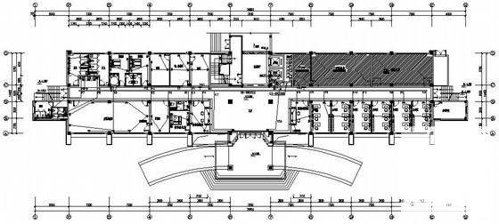
该附件是[深圳]某七层办公楼强弱电系统全套竣工图纸,为二类高层建筑,共8层,框架结构,高25.1米,建筑设计面积:8721.86平方米,其中地下室:998.13平方米。 附楼为4层框架结构,高23.25米,附楼与主楼相连。其中主楼一~七层改造,半地下室、八楼及屋顶局部改造,副楼二~四楼改造,一楼局部改造,室外网球场、门卫室、副楼配电房改造。
电气设计包含配电系统设计、照明灯具布置、插座动力系统设计、防雷接地系统、电话系统设计、网络系统设计、门禁系统设计等。

第 1 张图
第 1 张图
第 2 张图
第 2 张图
第 3 张图
第 3 张图
第 4 张图
第 4 张图
以上是部分图纸截图,有些图框没有放大后再截图,可能截图里不清晰或者看不到内容,您可以在下载后查看具体内容

温馨提示:该资料由网友于2020-2-28 09:58:13上传分享,您可以下载该资料进行学习和参考,如有侵权内容或者违法行为,请及时联系站长删除,如有疑问,您可以在电气工程专区发帖交流相关知识。

附件2099v11edeccdd10cceeed12dc.rar

2.02 MB

下载  售价: 100 积分    赚积分

相关帖子

回复

使用道具 举报

您需要登录后才可以回帖 登录 | 立即注册

本版积分规则

QQ|联系我们|豆豆网 ( 苏ICP备20004746号-1 )

GMT+8, 2025-12-18 20:53 , Processed in 0.034713 second(s), 27 queries .

本站所有内容均由网友自主分享,如有侵权内容或者违法行为,请及时联系站长删除,本站将根据实际情况进行积分奖励!请查看:免责声明

快速回复 返回顶部 返回列表