豆豆网

 找回密码
 立即注册

QQ登录

只需一步,快速开始

查看: 683|回复: 0

4层小学完整强弱电施工cad图纸(最新设计新火规甲级设计)

[复制链接]

0

主题

0

帖子

629

积分

超级版主

Rank: 8Rank: 8

积分
629
发表于 2020-2-18 11:29:28 | 显示全部楼层 |阅读模式

该帖子包含附件可供参考学习和下载,您可以 搜索 更多您想要的资源


  • 建筑类别:教育
  • 建筑高度类型:多层建筑
  • 建筑地上层数:4层
  • 建筑地下层数:1层
  • 图纸设计深度:施工图
  • 参考图纸:44张
  • 设计年代:近代
  • 地下室用途:车库,设备用房
  • 负荷等级:二级,三级
  • 防雷等级:第三类
  • 项目所在地:安徽
  • 强电设计:低压配电,电气照明,建筑物防雷,接地安全
  • 弱电设计:有线电视和卫星接收系统,广播系统,信息网络系统,其它

附件详情

  • 1#教学楼、2#教学楼、辅助教学楼:
  • 1、电气设计总说明
  • 2、强弱电系统图
  • 3、基础接地布置平面图
  • 4、一~四层照明配电平面图
  • 5、一~四层配电干线及弱电布置平面图
  • 6、屋顶防雷布置平面图
  • 报告厅:
  • 1、电气设计总说明
  • 2、强弱电竖向系统图
  • 3、配电系统图一、二
  • 4、基础接地平面图
  • 5、负一层配电干线平面图
  • 6、负一层~三层照明配电平面图
  • 7、屋顶层 防雷平面图
  • 8、负一层消防报警平面图
  • 9、一~三层 弱电平面图
  • 3#教学楼、1#科技楼、2#科技楼:
  • 1、电气设计总说明
  • 2、强弱电系统图
  • 3、基础接地布置平面图
  • 4、一~四层照明配电平面图
  • 5、一~四层配电干线及弱电布置平面图
  • 6、屋顶防雷布置平面图
  • 风雨操场:
  • 1、电气设计总说明
  • 2、配电系统图
  • 3、强弱电竖向系统图
  • 4、基础接地平面图
  • 5、一、二层照明配电平面图
  • 6、9.0m标高照明配电平面图
  • 7、一、二层消火栓起泵按钮平面图

附件详情

该项目位于安徽。
1#教学楼、2#教学楼、辅助教学楼:该项目地上四层,功能为教室、活动室及办公用房等,建筑面积为7246平米。该项目为多层综合楼,高18.85米。
3#教学楼、1#科技楼、2#科技楼:该项目地上四层,功能为教室、试验室及办公用房等,建筑面积为平米。该项目为多层综合楼高18.85米。
风雨操场:地上两层公共建筑,高17.2米。该项目建筑类别为体育馆。
设计范围包括:照明、电力、防雷接地、电话、宽带网、有线电视、广播系统、 火灾自动报警系统 等。
该附件,总共44张。

配电干线、电话宽带、消火栓起泵按钮

配电箱系统图

消防报警系统图

教学楼一层照明配电平面图

报告厅负一层消防报警平面图

报告厅一层弱电布置平面图

体育馆一层照明配电平面图

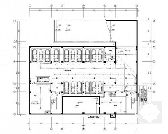
教学楼基础接地布置平面图

第 1 张图
第 1 张图
第 2 张图
第 2 张图
第 3 张图
第 3 张图
第 4 张图
第 4 张图
第 5 张图
第 5 张图
第 6 张图
第 6 张图
第 7 张图
第 7 张图
以上是部分图纸截图,有些图框没有放大后再截图,可能截图里不清晰或者看不到内容,您可以在下载后查看具体内容

温馨提示:该资料由网友于2020-2-18 11:29:28上传分享,您可以下载该资料进行学习和参考,如有侵权内容或者违法行为,请及时联系站长删除,如有疑问,您可以在建筑施工专区发帖交流相关知识。

附件2099v11edec0e0wcdfc00e2ccf.rar

4.63 MB

下载  售价: 100 积分    赚积分

相关帖子

回复

使用道具 举报

您需要登录后才可以回帖 登录 | 立即注册

本版积分规则

QQ|联系我们|豆豆网 ( 苏ICP备20004746号-1 )

GMT+8, 2025-12-27 17:03 , Processed in 0.016021 second(s), 27 queries .

本站所有内容均由网友自主分享,如有侵权内容或者违法行为,请及时联系站长删除,本站将根据实际情况进行积分奖励!请查看:免责声明

快速回复 返回顶部 返回列表