豆豆网

 找回密码
 立即注册

QQ登录

只需一步,快速开始

查看: 2917|回复: 0

一份一类高层住宅楼电气CAD施工图纸77张(消防自动报警)

[复制链接]

0

主题

0

帖子

776

积分

超级版主

Rank: 8Rank: 8

积分
776
发表于 2020-2-18 11:29:29 | 显示全部楼层 |阅读模式

该帖子包含附件可供参考学习和下载,您可以 搜索 更多您想要的资源


  • 建筑类别:住宅,其他
  • 建筑高度类型:高层建筑
  • 建筑设计结构形式:钢筋混凝土结构
  • 建筑设计面积:122652.81平方米
  • 建筑地上层数:30层
  • 建筑地下层数:1层
  • 图纸设计深度:施工图
  • 参考图纸:77张
  • 设计年代:近代
  • 地下室用途:车库,其它
  • 负荷等级:三级
  • 防雷等级:第二类
  • 项目所在地:广东
  • 强电设计:低压配电,电气照明,建筑物防雷,接地安全,其它
  • 弱电设计: 火灾自动报警系统 ,通信系统,有线电视和卫星接收系统,信息网络系统,呼应信号及信息显示,其它

附件详情

  • 1、电气设计说明
  • 2、配电竖向干线系统图
  • 3、配电结线系统图
  • 4、有线电视系统图
  • 5、综合布线系统图
  • 6、对讲系统图
  • 7、照明配电平面图
  • 8、动力配电平面图
  • 9、配电平面图
  • 10、弱电平面图
  • 11、基础接地平面图
  • 12、 防雷平面图
  • 13、消防自动报警平面图

附件详情

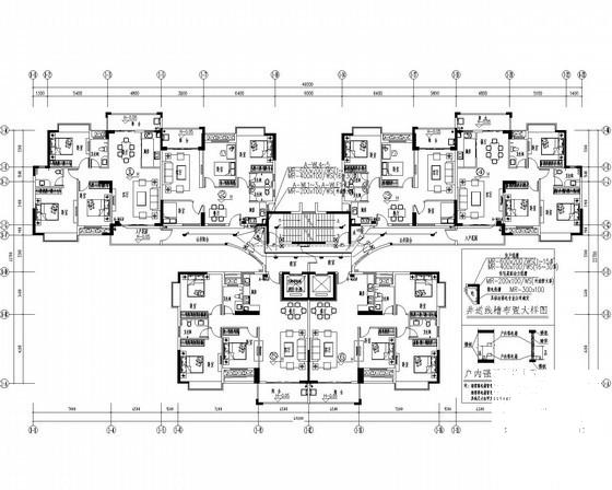
该附件为[广东]12万平方米一类高层住宅楼全套电气施工图纸77张。
项目概要:该项目为共有5座单体,1#、2#、4#、5#地上30层,3#地上28层,地下一层为停车库,建筑高度:1#、2#、4#、5#主体高度92.000米,3#主体高度99.500米,总建筑面积为122652.81平方米,属于I类高层,主要用途为住宅。
设计范围:建筑物防雷和接地, 建筑物电子信息系统供电电源的防雷及过电压防护,照明及动力系统,电话及有线电视系统,计算机网络系统,照度计算系统,火灾自动报警系统,可视对讲系统。
......
编制与,总共77张。

1#楼二 三十层配电平面图

1#屋面防雷平面图

2#楼二 三十层配电平面图

3#楼二 二十八层照明配电平面图

5#首层消防自动报警平面图

发电机系统

竖向配电干线 系统(二)

住宅配电结线系统

1#住宅弱电系统

第 1 张图
第 1 张图
第 2 张图
第 2 张图
第 3 张图
第 3 张图
第 4 张图
第 4 张图
第 5 张图
第 5 张图
第 6 张图
第 6 张图
以上是部分图纸截图,有些图框没有放大后再截图,可能截图里不清晰或者看不到内容,您可以在下载后查看具体内容

温馨提示:该资料由网友于2020-2-18 11:29:29上传分享,您可以下载该资料进行学习和参考,如有侵权内容或者违法行为,请及时联系站长删除,如有疑问,您可以在电气工程专区发帖交流相关知识。

附件2099v11edec0cw2d1f21cdsdcc.rar

5.97 MB

下载  售价: 100 积分    赚积分

相关帖子

回复

使用道具 举报

您需要登录后才可以回帖 登录 | 立即注册

本版积分规则

QQ|联系我们|豆豆网 ( 苏ICP备20004746号-1 )

GMT+8, 2025-12-23 02:45 , Processed in 0.017070 second(s), 27 queries .

本站所有内容均由网友自主分享,如有侵权内容或者违法行为,请及时联系站长删除,本站将根据实际情况进行积分奖励!请查看:免责声明

快速回复 返回顶部 返回列表