豆豆网

 找回密码
 立即注册

QQ登录

只需一步,快速开始

查看: 2611|回复: 0

一份3层商业服务楼给排水CAD施工图纸(地下车库)(泵房管道系统图)

[复制链接]

0

主题

0

帖子

1595

积分

超级版主

Rank: 8Rank: 8

积分
1595
发表于 2020-2-18 18:31:07 | 显示全部楼层 |阅读模式

该帖子包含附件可供参考学习和下载,您可以 搜索 更多您想要的资源


  • 附件设计说明:有
  • 建筑类别:宾馆
  • 建筑高度类型:多层建筑
  • 建筑设计结构形式:钢筋混凝土结构
  • 建筑设计面积:4799平方米
  • 建筑地上层数:3层
  • 建筑地下层数:1层
  • 图纸设计深度:施工图
  • 参考图纸:19张
  • 设计年代:近代
  • 地下室用途:车库
  • 生活供水设计:生活给水系统
  • 排水设计:污水系统,废水系统,雨水系统
  • 消防设计:室外消火栓系统,室内消火栓系统,喷淋系统
  • 供水方式:市政供水
  • 供水分区:无
  • 排水体制:污废合流,雨污分流
  • 排水技术:重力排水
  • 雨水重现期:10年
  • 火灾危险等级:中危险级Ⅱ级
  • 消火栓用水量室外(L/S):20
  • 消火栓用水量室内(L/S):15
  • 大样节点:卫生间
  • 项目所在地:湖南

附件详情

  • 设计总说明
  • 图例及材料表
  • 地下车库给排水平面图
  • 地下车库自喷平面图
  • 车道、车位布置平面图
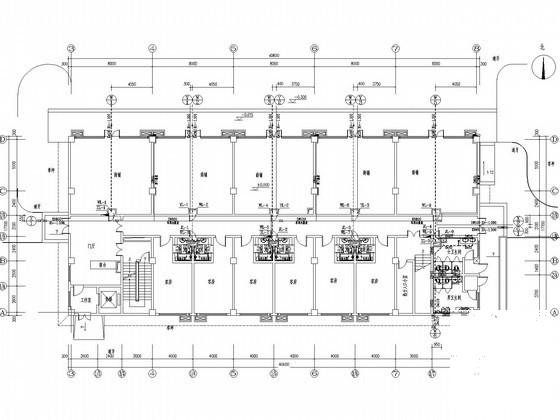
  • 一层给排水平面图
  • 二层给排水平面图
  • 三层给排水平面图
  • 屋顶给排水平面图
  • 地下车库及泵房管道系统图
  • 地下车库消火栓及废水管道系统图
  • 给水管道系统图
  • 旅馆消火栓管道系统图
  • 污水管道系统图
  • 污水支管及雨水管道系统图
  • 卫生间及管井大样图

附件详情

项目概要:该项目位于湖南,该项目为商业服务楼,包括地下一层停车库和地上三层旅馆,其中地下车库建筑面积2487平方米,停车数量71辆,属于Ⅲ类车库,耐火等级为一级;地上旅馆建筑面积为2312平方米,建筑体积为8192立方米,耐火等级二级。
设计范围:生活给水系统、生活污废水系统、消火栓给水系统、自动喷水灭火系统。
,共计19张图纸


二层给排水平面图

大样图

给水管道系统图

污水管道系统图

消防管道系统图

地下车库管道施工 - 1
第 1 张图
地下车库管道施工 - 2
第 2 张图
地下车库管道施工 - 3
第 3 张图
地下车库管道施工 - 4
第 4 张图
地下车库管道施工 - 5
第 5 张图
地下车库管道施工 - 6
第 6 张图
以上是部分图纸截图,有些图框没有放大后再截图,可能截图里不清晰或者看不到内容,您可以在下载后查看具体内容

温馨提示:该资料由网友于2020-2-18 18:31:07上传分享,您可以下载该资料进行学习和参考,如有侵权内容或者违法行为,请及时联系站长删除,如有疑问,您可以在给水排水专区发帖交流相关知识。

附件2099v11edc0ddwfsfcccec2ees.rar

918.7 KB

下载  售价: 100 积分    赚积分

地下车库管道施工相关帖子

回复

使用道具 举报

您需要登录后才可以回帖 登录 | 立即注册

本版积分规则

QQ|联系我们|豆豆网 ( 苏ICP备20004746号-1 )

GMT+8, 2025-11-26 07:33 , Processed in 0.020013 second(s), 27 queries .

本站所有内容均由网友自主分享,如有侵权内容或者违法行为,请及时联系站长删除,本站将根据实际情况进行积分奖励!请查看:免责声明

快速回复 返回顶部 返回列表