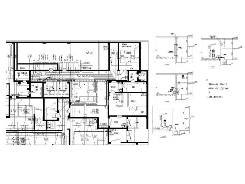
地下汽车库人防给排水喷淋系统设计CAD施工大样图
- 发布时间:2021-05-12
- 评论次数:0
- 浏览次数:0
- 文件大小:14.36 MB
- 收藏次数:0
-
文件名称:
附件-996995869509987879.zip
地下车库给排水设计下载
- 地下车库给排水图纸cad
- 商业广场地下车库给排水设计
- [CAD]地下上车库给排水设计图纸.dwg
- 地下车库给排水图纸设计说明cad
- 地下车库给排水设计图纸cad
- 地下人防车库工程给排水设计施工图纸_地下车库消防系统图
- 彭州小区地下车库给排水CAD图纸
- 小区地下车库给排水CAD施工图纸
- [CAD]小区地下车库给排水图纸.dwg
- 大型地下车库给排水全套施工CAD图纸
- 大厦地下车库给排水CAD施工图纸
- 地下车库给排水施工图cad
- 一份大型地下车库给排水给排水CAD图纸
- 大型地下车库给排水给排水CAD图纸(dwg)
- 小区地下车库给排水设计CAD施工图纸
- 独立地下车库给排水设计CAD施工图纸.dwg
- 地下车库给排水cad设计图纸和自动喷水灭火系统图
- 地下车库给排水设计CAD图纸(自动喷水系统).dwg
- 单层地下车库给排水CAD施工大样图(设计说明).dwg
- 地下车库给排水施工CAD图纸(设计说明)
全部评论
评论网友评论仅友表达个人看法,并不表明本站同意其观点,不得发布违反法律法规的内容!
