豆豆网

 找回密码
 立即注册

QQ登录

只需一步,快速开始

查看: 2710|回复: 0

一份大型住宅小区地下室工程电气设计CAD施工图纸(火灾自动报警)

[复制链接]

0

主题

0

帖子

1596

积分

超级版主

Rank: 8Rank: 8

积分
1596
发表于 2020-2-18 19:54:58 | 显示全部楼层 |阅读模式

该帖子包含附件可供参考学习和下载,您可以 搜索 更多您想要的资源


  • 建筑类别:住宅
  • 建筑设计结构形式:钢筋混凝土结构
  • 建筑地下层数:1层
  • 图纸设计深度:施工图
  • 参考图纸:42张
  • 设计年代:近代
  • 地下室用途:车库,设备用房
  • 负荷等级:一级
  • 接地方式:TN-C-S
  • 强电设计:低压配电,电气照明,接地安全
  • 弱电设计: 火灾自动报警系统 ,广播系统

附件详情

  • 1、电气设计说明
  • 2、 配电箱系统
  • 3、火灾自动报警系统图
  • 4、车库 照明平面图
  • 5、车库动力平面图
  • 6、车库消防平面图
  • 7、车库接地平面图

附件详情

该附件是大型住宅小区地下室工程全套电气施工图纸,总共42张。
该项目为地下停车库,A到C区为地下一层,D,E为地下两层,分十三个防火分区。钢筋混凝土框架结构。
电气设计包含配电系统设计、照明灯具布置、插座动力系统设计、接地系统设计、火灾自动报警系统设计等。

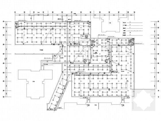
B区地下车库火灾报警系统图

D段车库地下一层照明平面图

地下B区车库消防平面图

地下C区车库照明平面图

配电箱系统图

地下B区车库接地平面图

地下室电气设计 - 1
第 1 张图
地下室电气设计 - 2
第 2 张图
地下室电气设计 - 3
第 3 张图
地下室电气设计 - 4
第 4 张图
地下室电气设计 - 5
第 5 张图
地下室电气设计 - 6
第 6 张图
以上是部分图纸截图,有些图框没有放大后再截图,可能截图里不清晰或者看不到内容,您可以在下载后查看具体内容

温馨提示:该资料由网友于2020-2-18 19:54:58上传分享,您可以下载该资料进行学习和参考,如有侵权内容或者违法行为,请及时联系站长删除,如有疑问,您可以在电气工程专区发帖交流相关知识。

附件2099v11edece2ec0f0f21c0f0f.rar

2.84 MB

下载  售价: 100 积分    赚积分

地下室电气设计相关帖子

回复

使用道具 举报

您需要登录后才可以回帖 登录 | 立即注册

本版积分规则

QQ|联系我们|豆豆网 ( 苏ICP备20004746号-1 )

GMT+8, 2025-12-25 18:49 , Processed in 0.100180 second(s), 27 queries .

本站所有内容均由网友自主分享,如有侵权内容或者违法行为,请及时联系站长删除,本站将根据实际情况进行积分奖励!请查看:免责声明

快速回复 返回顶部 返回列表