豆豆网

 找回密码
 立即注册

QQ登录

只需一步,快速开始

查看: 2877|回复: 0

一份一类地下车库给排水CAD施工图纸

[复制链接]

0

主题

0

帖子

1085

积分

超级版主

Rank: 8Rank: 8

积分
1085
发表于 2020-2-18 19:55:17 | 显示全部楼层 |阅读模式

该帖子包含附件可供参考学习和下载,您可以 搜索 更多您想要的资源


  • 附件设计说明:有
  • 建筑类别:其他
  • 建筑高度类型:单层建筑
  • 建筑设计结构形式:其他结构
  • 建筑地下层数:1层
  • 图纸设计深度:施工图
  • 参考图纸:24张
  • 设计年代:近代
  • 地下室用途:车库,设备用房,其它
  • 生活供水设计:生活给水系统
  • 生产供水设计:热水系统
  • 排水设计:污水系统,废水系统,雨水系统
  • 消防设计:室外消火栓系统,室内消火栓系统,喷淋系统
  • 供水方式:市政供水
  • 供水分区:无
  • 排水体制:污废合流,雨污分流
  • 火灾危险等级:中危险级Ⅰ级
  • 消火栓用水量室外(L/S):30
  • 消火栓用水量室内(L/S):30
  • 大样节点:泵房,卫生间
  • 项目所在地:四川

附件详情

  • 资料目录
  • 资料目录、重复使用资料目录、图例、设备及主要材料表
  • 设计、施工总说明
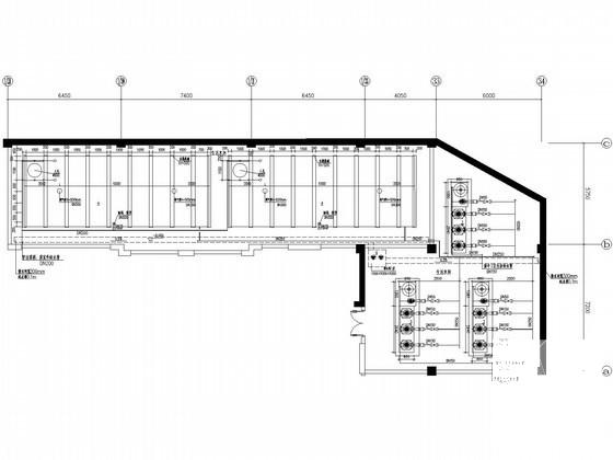
  • 地下室给排水总平面图
  • 地下室给排水平面图A区
  • 地下室给排水平面图B区
  • 地下室给排水平面图C区
  • 地下室给排水平面图D区
  • 地下室给排水平面图E区
  • 地下室给排水平面图F区
  • 地下室给排水平面图G区
  • 地下室给排水平面图H区
  • 地下室自动喷淋总平面图
  • 地下室自动喷淋平面图A区
  • 地下室自动喷淋平面图B区
  • 地下室自动喷淋平面图C区
  • 地下室自动喷淋平面图D区
  • 地下室自动喷淋平面图E区
  • 地下室自动喷淋平面图F区
  • 地下室自动喷淋平面图G区
  • 地下室自动喷淋平面图H区
  • 地下室给排水系统图(一)
  • 地下室给排水系统图(二)
  • 地下室给排水系统图(三)
  • 生活水泵房给排水放大图

附件详情

该工程位于四川,是一地下车库给排水设计项目,建筑层数为地下一层;该项目地下车库为一类地下车库,火灾危险性大,为提高灭火系统的安全性,本建筑自动喷水灭火系统应采用水成膜泡沫液强化闭式系统性能。
设计范围:给水系统、污水系统、消火栓给水系统、自动喷淋系统等;
,共计24张图纸;

生活水泵房平面放大图

卫生间给排水大样图

地下室消火栓系统

地下室泵房给水系统图

第 1 张图
第 1 张图
第 2 张图
第 2 张图
第 3 张图
第 3 张图
第 4 张图
第 4 张图
第 5 张图
第 5 张图
以上是部分图纸截图,有些图框没有放大后再截图,可能截图里不清晰或者看不到内容,您可以在下载后查看具体内容

温馨提示:该资料由网友于2020-2-18 19:55:17上传分享,您可以下载该资料进行学习和参考,如有侵权内容或者违法行为,请及时联系站长删除,如有疑问,您可以在给水排水专区发帖交流相关知识。

附件2099v11edc0s1wc10cds0fccs1.rar

5.67 MB

下载  售价: 100 积分    赚积分

相关帖子

回复

使用道具 举报

您需要登录后才可以回帖 登录 | 立即注册

本版积分规则

QQ|联系我们|豆豆网 ( 苏ICP备20004746号-1 )

GMT+8, 2025-12-28 06:13 , Processed in 0.013970 second(s), 27 queries .

本站所有内容均由网友自主分享,如有侵权内容或者违法行为,请及时联系站长删除,本站将根据实际情况进行积分奖励!请查看:免责声明

快速回复 返回顶部 返回列表