豆豆网

 找回密码
 立即注册

QQ登录

只需一步,快速开始

查看: 1833|回复: 0

20层经济适用房电气设计CAD施工图纸

[复制链接]

0

主题

0

帖子

1642

积分

超级版主

Rank: 8Rank: 8

积分
1642
发表于 2020-2-18 20:20:06 | 显示全部楼层 |阅读模式

该帖子包含附件可供参考学习和下载,您可以 搜索 更多您想要的资源


  • 建筑类别:住宅
  • 建筑高度类型:高层建筑
  • 建筑设计结构形式:钢筋混凝土结构
  • 建筑地上层数:20层
  • 建筑地下层数:1层
  • 图纸设计深度:施工图
  • 参考图纸:35张
  • 设计年代:近代
  • 地下室用途:车库
  • 负荷等级:一级
  • 防雷等级:第三类
  • 接地方式:TN-S
  • 项目所在地:浙江
  • 强电设计:低压配电,电气照明,建筑物防雷,接地安全

附件详情

  • 一、 电气设计 说明
  • 二、动力系统图
  • 三、 照明系统
  • 四、垂直配电干线图
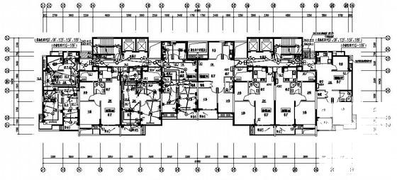
  • 五、电气平面图
  • 六、均压环平面图
  • 七、 防雷接地 平面图

附件详情

该项目是经济适用房,上部为一、二类高层建筑,主要功能为住宅,地下室为车库。电气设计包含变配电及自备电系统、电力配电系统、照明系统、建筑物防雷、接地系统及安全措施等。

第 1 张图
第 1 张图
第 2 张图
第 2 张图
第 3 张图
第 3 张图
第 4 张图
第 4 张图
以上是部分图纸截图,有些图框没有放大后再截图,可能截图里不清晰或者看不到内容,您可以在下载后查看具体内容

温馨提示:该资料由网友于2020-2-18 20:20:06上传分享,您可以下载该资料进行学习和参考,如有侵权内容或者违法行为,请及时联系站长删除,如有疑问,您可以在电气工程专区发帖交流相关知识。

附件2099v11edeccssfcfd0cd02s0f.rar

6.09 MB

下载  售价: 100 积分    赚积分

相关帖子

回复

使用道具 举报

您需要登录后才可以回帖 登录 | 立即注册

本版积分规则

QQ|联系我们|豆豆网 ( 苏ICP备20004746号-1 )

GMT+8, 2025-12-28 21:01 , Processed in 0.026563 second(s), 27 queries .

本站所有内容均由网友自主分享,如有侵权内容或者违法行为,请及时联系站长删除,本站将根据实际情况进行积分奖励!请查看:免责声明

快速回复 返回顶部 返回列表