豆豆网

 找回密码
 立即注册

QQ登录

只需一步,快速开始

查看: 619|回复: 0

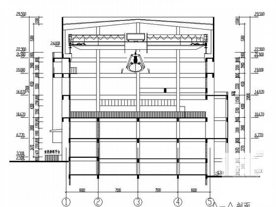
一份垃圾贮存库建筑施工CAD图纸(高29.5米)(雨棚大样)

[复制链接]

0

主题

0

帖子

1489

积分

超级版主

Rank: 8Rank: 8

积分
1489
发表于 2020-2-18 20:20:09 | 显示全部楼层 |阅读模式

该帖子包含附件可供参考学习和下载,您可以 搜索 更多您想要的资源


  • 图纸设计深度:施工图
  • 建筑高度:29.5米
  • 参考图纸:14张

附件详情

该资料包含:建筑总说明、门窗表、门窗大样、各层平面图、立面、剖面、雨棚大样、低位水箱间大样、高压配电室大样、热控现场控制盘间大样、、操纵室大样、 380V配电装置室大样


第 1 张图
第 1 张图
第 2 张图
第 2 张图
第 3 张图
第 3 张图
第 4 张图
第 4 张图
以上是部分图纸截图,有些图框没有放大后再截图,可能截图里不清晰或者看不到内容,您可以在下载后查看具体内容

温馨提示:该资料由网友于2020-2-18 20:20:09上传分享,您可以下载该资料进行学习和参考,如有侵权内容或者违法行为,请及时联系站长删除,如有疑问,您可以在建筑施工专区发帖交流相关知识。

附件2099v11eddfc00we22c11defdd.rar

1019.75 KB

下载  售价: 100 积分    赚积分

相关帖子

回复

使用道具 举报

您需要登录后才可以回帖 登录 | 立即注册

本版积分规则

QQ|联系我们|豆豆网 ( 苏ICP备20004746号-1 )

GMT+8, 2025-12-31 20:21 , Processed in 0.016964 second(s), 27 queries .

本站所有内容均由网友自主分享,如有侵权内容或者违法行为,请及时联系站长删除,本站将根据实际情况进行积分奖励!请查看:免责声明

快速回复 返回顶部 返回列表