豆豆网

 找回密码
 立即注册

QQ登录

只需一步,快速开始

查看: 713|回复: 0

一份大学1层餐厅建筑施工CAD图纸(高7.2米)

[复制链接]

0

主题

0

帖子

1075

积分

超级版主

Rank: 8Rank: 8

积分
1075
发表于 2020-2-20 20:43:30 | 显示全部楼层 |阅读模式

该帖子包含附件可供参考学习和下载,您可以 搜索 更多您想要的资源


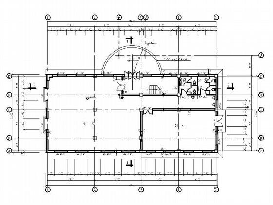
  • 图纸设计深度:施工图
  • 建筑设计面积:1434平方米
  • 建筑高度:7.2米
  • 建筑层数:1
  • 参考图纸:21张

附件详情

该资料包含:资料目录、建筑设计总说明、一层平面图、屋顶平面图、立面图、剖面图、 楼梯详图 、厕所详图、门窗详图、门窗表
参考图纸:21张CAD


剖面

平面

第 1 张图
第 1 张图
第 2 张图
第 2 张图
第 3 张图
第 3 张图
第 4 张图
第 4 张图
以上是部分图纸截图,有些图框没有放大后再截图,可能截图里不清晰或者看不到内容,您可以在下载后查看具体内容

温馨提示:该资料由网友于2020-2-20 20:43:30上传分享,您可以下载该资料进行学习和参考,如有侵权内容或者违法行为,请及时联系站长删除,如有疑问,您可以在建筑施工专区发帖交流相关知识。

附件2099v11edd0de0dfe1s0f1fd2d.rar

865.51 KB

下载  售价: 100 积分    赚积分

相关帖子

回复

使用道具 举报

您需要登录后才可以回帖 登录 | 立即注册

本版积分规则

QQ|联系我们|豆豆网 ( 苏ICP备20004746号-1 )

GMT+8, 2025-12-21 02:40 , Processed in 0.016360 second(s), 27 queries .

本站所有内容均由网友自主分享,如有侵权内容或者违法行为,请及时联系站长删除,本站将根据实际情况进行积分奖励!请查看:免责声明

快速回复 返回顶部 返回列表