豆豆网

 找回密码
 立即注册

QQ登录

只需一步,快速开始

查看: 2894|回复: 0

一份6层交通宾馆及相邻商住楼给排水CAD施工图纸

[复制链接]

0

主题

0

帖子

1246

积分

超级版主

Rank: 8Rank: 8

积分
1246
发表于 2020-2-19 10:42:41 | 显示全部楼层 |阅读模式

该帖子包含附件可供参考学习和下载,您可以 搜索 更多您想要的资源


  • 附件设计说明:有
  • 建筑类别:住宅,商业,宾馆
  • 建筑高度类型:多层建筑
  • 建筑设计结构形式:钢筋混凝土结构
  • 建筑地上层数:6层
  • 图纸设计深度:施工图
  • 参考图纸:20张
  • 设计年代:近代
  • 生活供水设计:生活给水系统
  • 生产供水设计:热水系统
  • 排水设计:污水系统,废水系统,雨水系统
  • 消防设计:室外消火栓系统,室内消火栓系统,喷淋系统,灭火器配置系统
  • 供水设备:高位水箱,水泵站,气压水罐,水池
  • 供水方式:市政供水,变频供水,高位水箱供水
  • 排水体制:污废合流,雨污分流
  • 排水技术:重力排水
  • 消火栓用水量室外(L/S):20
  • 消火栓用水量室内(L/S):15
  • 大样节点:卫生间
  • 热水供应方式:集中热水供应
  • 项目所在地:江苏

附件详情

  • 给排水总说明
  • 给排水大样图
  • 排水系统图
  • 自动喷水给水系统图
  • 雨水系统图
  • 生活热水给水系统图
  • 生活冷水给水系统图
  • 卫生间大样冷水给水支管系统图
  • 卫生间大样热水给水支管系统图
  • 消防栓给水系统图
  • 一层给排水平面
  • 二层给排水平面
  • 三层给排水平面
  • 四、五层给排水平面
  • 六层给排水平面
  • 机房层给排水平面

附件详情

该项目位于江苏,为交通宾馆及相邻商住楼危房改造工程,地上六层,宾馆面积5384平米,商住楼楼1020平米,附有车棚。
设计范围:生活给水系统、生活排水系统、生活热水系统、雨水系统、自动喷水系统、消火栓系统。
,共20张图。

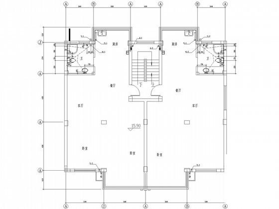
一层给排水平面

住宅给排水大样

生活热水给水系统图

第 1 张图
第 1 张图
第 2 张图
第 2 张图
第 3 张图
第 3 张图
第 4 张图
第 4 张图
以上是部分图纸截图,有些图框没有放大后再截图,可能截图里不清晰或者看不到内容,您可以在下载后查看具体内容

温馨提示:该资料由网友于2020-2-19 10:42:41上传分享,您可以下载该资料进行学习和参考,如有侵权内容或者违法行为,请及时联系站长删除,如有疑问,您可以在给水排水专区发帖交流相关知识。

附件2099v11edc01cwew0fccssee0c.rar

2.53 MB

下载  售价: 100 积分    赚积分

相关帖子

回复

使用道具 举报

您需要登录后才可以回帖 登录 | 立即注册

本版积分规则

QQ|联系我们|豆豆网 ( 苏ICP备20004746号-1 )

GMT+8, 2025-12-30 18:45 , Processed in 0.015657 second(s), 27 queries .

本站所有内容均由网友自主分享,如有侵权内容或者违法行为,请及时联系站长删除,本站将根据实际情况进行积分奖励!请查看:免责声明

快速回复 返回顶部 返回列表