豆豆网

 找回密码
 立即注册

QQ登录

只需一步,快速开始

查看: 2505|回复: 0

一份33层一梯两户塔式商业住宅楼给排水CAD施工图纸(压力排水)(自喷系统原理图)

[复制链接]

0

主题

0

帖子

1384

积分

超级版主

Rank: 8Rank: 8

积分
1384
发表于 2020-2-19 10:48:35 | 显示全部楼层 |阅读模式

该帖子包含附件可供参考学习和下载,您可以 搜索 更多您想要的资源


  • 附件设计说明:有
  • 建筑类别:住宅, 商业
  • 建筑高度类型:高层建筑
  • 建筑设计结构形式:其他结构
  • 建筑设计面积:33213平方米
  • 建筑地上层数:33层
  • 建筑地下层数:2层
  • 图纸设计深度:施工图
  • 参考图纸:30张
  • 设计年代:近代
  • 地下室用途:商业, 车库, 设备用房, 其它
  • 生活供水设计:生活给水系统
  • 生产供水设计:热水系统
  • 排水设计:污水系统, 废水系统, 雨水系统
  • 消防设计:室内消火栓系统, 喷淋系统, 湿式灭火系统, 灭火器配置系统
  • 供水设备:高位水箱, 水泵站, 气压水罐, 稳压泵, 水池
  • 供水方式:市政供水, 变频供水, 分区供水, 高位水箱供水
  • 供水分区:三区
  • 排水体制:污废合流, 雨污分流
  • 排水技术:重力排水, 压力排水
  • 雨水重现期:5年
  • 火灾危险等级:中危险级Ⅰ级, 中危险级Ⅱ级
  • 消火栓用水量室外(L/S):30
  • 消火栓用水量室内(L/S):40
  • 特殊系统:压力排水
  • 大样节点:厨房, 卫生间, 阀门管件
  • 项目所在地:陕西

附件详情

  • 资料目录
  • 给排水设计说明
  • 给排水施工说明
  • 给排水图例
  • 主要设备及材料表
  • 地下二层给排水平面图
  • 地下二层自喷平面图
  • 地下一层给排水平面图
  • 地下一层自喷平面图
  • 管道夹层给排水平面图
  • 管道夹层自喷平面图
  • 一层给排水平面图
  • 一层自喷平面图
  • 二层给排水平面图
  • 二层自喷平面图
  • 三层给排水平面图
  • 三层自喷平面图
  • 四层给排水平面图
  • 五层给排水平面图
  • 六层给排水平面图
  • 七~十九层给排水平面图
  • 二十~三十二层给排水平面图
  • 三十三层给排水平面图
  • 屋面给排水平面图
  • 标准层给排水户型大样图
  • 给排水管道轴测图、 节点图
  • 排水系统图
  • 生活给水干管原理图
  • 商业给水系统图
  • 消火栓系统原理图
  • 雨水立管原理图
  • 压力排水、自喷系统原理图
  • 商业废水系统图

附件详情

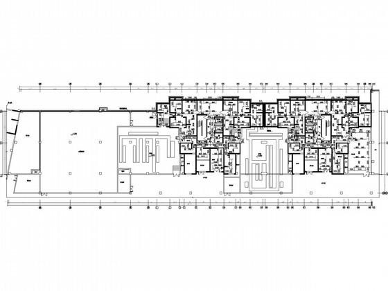
该项目位于陕西,该项目为一梯两户的塔式住宅。总建筑设计面积:33213.0平米,(含地下部分面积)。建筑层数:主体地上260套,建筑高度:96.3m。按一类商住楼设计。地上33层,地下2层,一类商业住宅,三层商业裙房,总建筑面积近3.5万平方米,含生活给水系统、生活污水系统、消火栓给水系统、自动喷水灭火系统设计,内容全面翔实,可作为给排水设计参考。本单体设计范围以内的给水排水、消防等管道系统。
管道系统:本单体设有生活给水系统、生活污水系统(压力排水系统)、消火栓给水系统、自动喷水灭火系统。
,共30张图。

地下二层给排水及消防平面图

地下二层自喷平面图

给排水系统图

压力排水原理图

二层自喷平面图

商业住宅楼给排水 - 1
第 1 张图
商业住宅楼给排水 - 2
第 2 张图
商业住宅楼给排水 - 3
第 3 张图
商业住宅楼给排水 - 4
第 4 张图
商业住宅楼给排水 - 5
第 5 张图
商业住宅楼给排水 - 6
第 6 张图
以上是部分图纸截图,有些图框没有放大后再截图,可能截图里不清晰或者看不到内容,您可以在下载后查看具体内容

温馨提示:该资料由网友于2020-2-19 10:48:35上传分享,您可以下载该资料进行学习和参考,如有侵权内容或者违法行为,请及时联系站长删除,如有疑问,您可以在给水排水专区发帖交流相关知识。

附件2099v11edc01dcsw00sdfdedsc.rar

2.52 MB

下载  售价: 100 积分    赚积分

商业住宅楼给排水相关帖子

回复

使用道具 举报

您需要登录后才可以回帖 登录 | 立即注册

本版积分规则

QQ|联系我们|豆豆网 ( 苏ICP备20004746号-1 )

GMT+8, 2025-12-28 07:41 , Processed in 0.015089 second(s), 27 queries .

本站所有内容均由网友自主分享,如有侵权内容或者违法行为,请及时联系站长删除,本站将根据实际情况进行积分奖励!请查看:免责声明

快速回复 返回顶部 返回列表