豆豆网

 找回密码
 立即注册

QQ登录

只需一步,快速开始

查看: 2092|回复: 0

一份旅馆电气CAD施工图纸(人防)

[复制链接]

0

主题

0

帖子

962

积分

超级版主

Rank: 8Rank: 8

积分
962
发表于 2020-2-19 11:04:06 | 显示全部楼层 |阅读模式

该帖子包含附件可供参考学习和下载,您可以 搜索 更多您想要的资源


  • 建筑类别:住宅
  • 建筑高度类型:高层建筑
  • 建筑设计结构形式:钢筋混凝土结构
  • 建筑设计面积:1697.25平方米
  • 图纸设计深度:施工图
  • 参考图纸:16张
  • 设计年代:近代
  • 地下室用途:人防
  • 节点大样:人防
  • 防雷等级:第三类
  • 接地方式:TN-S
  • 项目所在地:山西
  • 强电设计: 供配电系统 ,电气照明,接地安全,其它
  • 弱电设计:通信系统,有线电视和卫星接收系统,其它

附件详情

  • 设计说明
  • 配电系统图
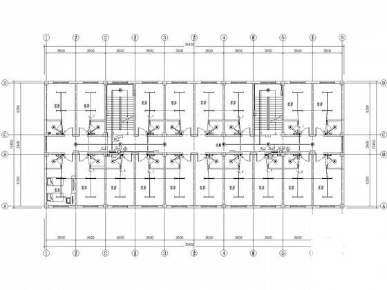
  • 一层 照明平面图
  • 二层照明平面图
  • 三层照明平面图
  • 一层插座布置平面图
  • 二~三层插座布置平面图
  • 一层电话出线座布置平面图
  • 二~三层电话出线座布置平面图
  • 一层闭路电视出线座平面图
  • 二~三层闭路电视出线座平面图
  • 一层信息网络出线座平面图
  • 二~三层信息网络出线座平面图
  • 屋顶 防雷接地 平面图
  • 接地网平面图

附件详情

该附件为山西省旅馆电气图纸,建筑设计面积:1697.25米,建筑物高14.6米。设计内容:供配电设计,照明,接地及电话通信,闭路电视,信息网络的管线预设。,图纸共16张。


二~三层信息网络出线座平面图

二层照明平面图

接地网平面图

旅馆电气施工图 - 1
第 1 张图
旅馆电气施工图 - 2
第 2 张图
旅馆电气施工图 - 3
第 3 张图
旅馆电气施工图 - 4
第 4 张图
以上是部分图纸截图,有些图框没有放大后再截图,可能截图里不清晰或者看不到内容,您可以在下载后查看具体内容

温馨提示:该资料由网友于2020-2-19 11:04:06上传分享,您可以下载该资料进行学习和参考,如有侵权内容或者违法行为,请及时联系站长删除,如有疑问,您可以在电气工程专区发帖交流相关知识。

附件2099v11edec0e0fec2cd0d21s2.rar

719.18 KB

下载  售价: 100 积分    赚积分

旅馆电气施工图相关帖子

回复

使用道具 举报

您需要登录后才可以回帖 登录 | 立即注册

本版积分规则

QQ|联系我们|豆豆网 ( 苏ICP备20004746号-1 )

GMT+8, 2025-12-22 06:32 , Processed in 0.017290 second(s), 27 queries .

本站所有内容均由网友自主分享,如有侵权内容或者违法行为,请及时联系站长删除,本站将根据实际情况进行积分奖励!请查看:免责声明

快速回复 返回顶部 返回列表