豆豆网

 找回密码
 立即注册

QQ登录

只需一步,快速开始

查看: 1409|回复: 0

城市次干路道路路基路面CAD施工图纸设计.dwg

[复制链接]

0

主题

0

帖子

1119

积分

超级版主

Rank: 8Rank: 8

积分
1119
发表于 2020-12-7 19:58:53 | 显示全部楼层 |阅读模式

该帖子包含附件可供参考学习和下载,您可以 搜索 更多您想要的资源


设计标准:   (1)道路等级:城市次干路   (2)设计速度:50km/h   (3)设计年限:沥青砼路面15年   (4)交通等级:重   (5)标准轴载:BZZ—100   (6)抗震标准:按地震烈度6度设防   ……  ……   共27张

s-i-08 路基一般设计图.dwg
s-i-08 路基一般设计图.dwg
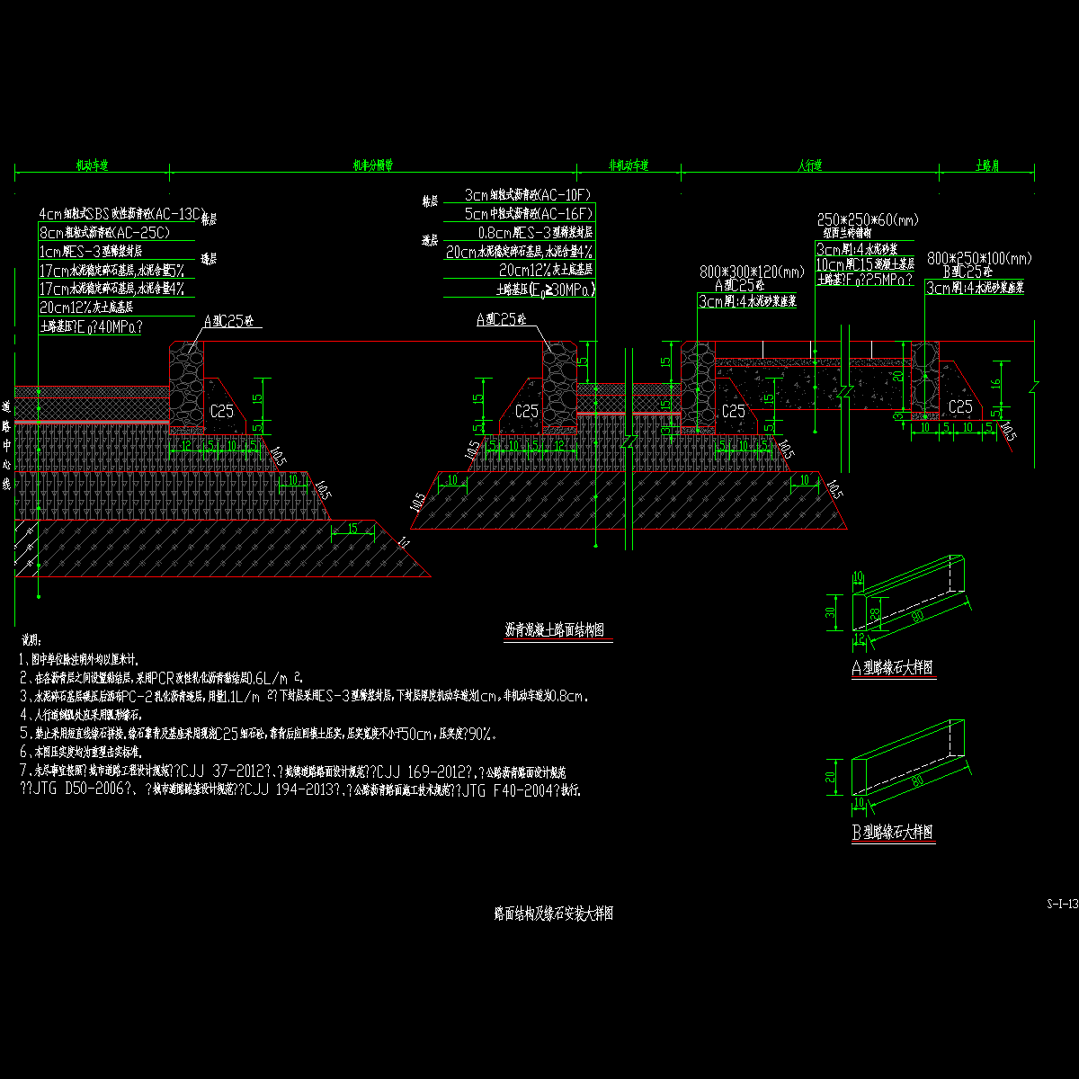
s-i-13 路面结构设计图.dwg
s-i-13 路面结构设计图.dwg
s-i-14 新老路基衔接.dwg
s-i-14 新老路基衔接.dwg
s-i-15 无障碍大样.dwg
s-i-15 无障碍大样.dwg
s-i-16 盲道设计大样图.dwg
s-i-16 盲道设计大样图.dwg
s-i-17 人行道铺砌大样图.dwg
s-i-17 人行道铺砌大样图.dwg
s-i-18 公交港湾及路口拓宽设计大样图.dwg
s-i-18 公交港湾及路口拓宽设计大样图.dwg
s-i-19 路基防护工程设计图.dwg
s-i-19 路基防护工程设计图.dwg
s-i-21 地基处理设计图.dwg
s-i-21 地基处理设计图.dwg
以上是部分图纸截图,有些图框没有放大后再截图,可能截图里不清晰或者看不到内容,您可以在下载后查看具体内容

附件2099v11ec2ws10scesc2dds.rar

3.29 MB

下载  售价: 100 积分    赚积分

路基路面施工图相关帖子

回复

使用道具 举报

您需要登录后才可以回帖 登录 | 立即注册

本版积分规则

QQ|联系我们|豆豆网 ( 苏ICP备20004746号-1 )

GMT+8, 2025-12-27 07:31 , Processed in 0.016160 second(s), 27 queries .

本站所有内容均由网友自主分享,如有侵权内容或者违法行为,请及时联系站长删除,本站将根据实际情况进行积分奖励!请查看:免责声明

快速回复 返回顶部 返回列表