豆豆网

 找回密码
 立即注册

QQ登录

只需一步,快速开始

查看: 2067|回复: 0

一份大型污水处理厂电气CAD施工图纸(二次原理图)

[复制链接]

0

主题

0

帖子

1595

积分

超级版主

Rank: 8Rank: 8

积分
1595
发表于 2020-2-19 17:12:03 | 显示全部楼层 |阅读模式

该帖子包含附件可供参考学习和下载,您可以 搜索 更多您想要的资源


  • 建筑类别:工业建筑
  • 建筑高度类型:多层建筑
  • 图纸设计深度:施工图
  • 强电设计: 供配电系统 ,配变电所,低压配电,电气照明,建筑物防雷,接地安全,电气控制,其它
  • 弱电设计: 火灾自动报警系统 ,视频监控系统,其它

附件详情

  • 电气专业资料目录
  • 电气设备材料表
  • 用电负荷表
  • 联锁关系表
  • 爆炸危险区域划分图
  • 低压系统图
  • UPS系统图
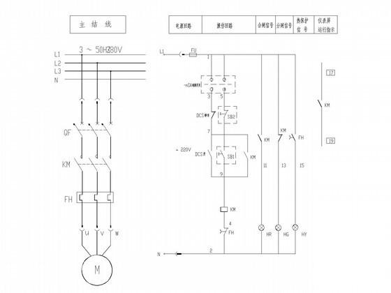
  • 22kW及以下电机二次原理图(一)
  • 22kW及以下电机二次原理图(二)
  • 22kW及以下电机二次原理图(三)
  • 110~160kW电动机控制接线图
  • 火灾报警联锁回路控制接线图
  • 380/220电源进线接线图
  • 380/220分断开关接线图
  • 变电所平剖面图
  • 配电平面图
  • 防雷接地平面图
  • 照明平面图
  • 检修电源箱系统图
  • 动力配电箱系统图
  • 照明系统图
  • 电缆桥架布置图
  • 控制按钮选择表
  • 电缆表
  • 配电安装大样图
  • 照明安装大样图
  • 防雷接地安装大样图
  • 新编设计文件小计

附件详情

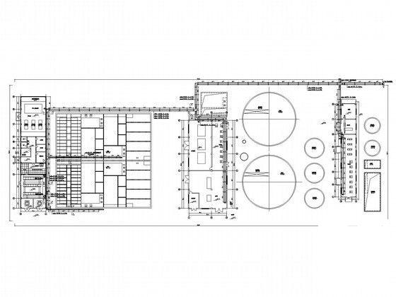
该附件是大型污水处理厂全套电气施工图纸(含二次原理图),总共27张。

22kW及以下电机二次原理图(一)

380220电源进线接线图

变电所平剖面图

低压系统图

电缆桥架布置图

鼓风机房及配电间 照明及插座平面图

照明安装大样图

照明系统图

UPS系统图

污水处理电气原理图 - 1
第 1 张图
污水处理电气原理图 - 2
第 2 张图
污水处理电气原理图 - 3
第 3 张图
污水处理电气原理图 - 4
第 4 张图
污水处理电气原理图 - 5
第 5 张图
污水处理电气原理图 - 6
第 6 张图
以上是部分图纸截图,有些图框没有放大后再截图,可能截图里不清晰或者看不到内容,您可以在下载后查看具体内容

温馨提示:该资料由网友于2020-2-19 17:12:03上传分享,您可以下载该资料进行学习和参考,如有侵权内容或者违法行为,请及时联系站长删除,如有疑问,您可以在电气工程专区发帖交流相关知识。

附件2099v11edecf1s001scfcfc1ed.rar

2.31 MB

下载  售价: 100 积分    赚积分

污水处理电气原理图相关帖子

回复

使用道具 举报

您需要登录后才可以回帖 登录 | 立即注册

本版积分规则

QQ|联系我们|豆豆网 ( 苏ICP备20004746号-1 )

GMT+8, 2025-11-6 13:40 , Processed in 0.020074 second(s), 27 queries .

本站所有内容均由网友自主分享,如有侵权内容或者违法行为,请及时联系站长删除,本站将根据实际情况进行积分奖励!请查看:免责声明

快速回复 返回顶部 返回列表