豆豆网

 找回密码
 立即注册

QQ登录

只需一步,快速开始

查看: 2247|回复: 0

一份小学风雨操场、教学楼、科技楼及报告厅电气CAD施工图纸(人防)

[复制链接]

0

主题

0

帖子

1096

积分

超级版主

Rank: 8Rank: 8

积分
1096
发表于 2020-2-21 08:54:30 | 显示全部楼层 |阅读模式

该帖子包含附件可供参考学习和下载,您可以 搜索 更多您想要的资源


  • 建筑类别:教育,文化
  • 建筑高度类型:多层建筑
  • 建筑设计结构形式:钢筋混凝土结构
  • 建筑设计面积:19810平方米
  • 建筑地上层数:4层
  • 建筑地下层数:1层
  • 图纸设计深度:施工图
  • 参考图纸:45张
  • 设计年代:近代
  • 地下室用途:车库,设备用房
  • 节点大样:人防
  • 防雷等级:第三类
  • 接地方式:TN-S
  • 项目所在地:安徽
  • 强电设计: 供配电系统 ,电气照明,建筑物防雷,接地安全,其它
  • 弱电设计: 火灾自动报警系统 ,有线电视和卫星接收系统,信息网络系统,其它

附件详情

  • 电气设计说明
  • 配电系统图
  • 强弱电竖向系统图
  • 基础接地平面图
  • 一层照明配电平面图
  • 二层照明配电平面图
  • 三层照明配电平面图
  • 四层照明配电平面图
  • 屋顶防雷布置平面图
  • 9.0m标高照明配电平面图
  • 一层消火栓起泵按钮平面图
  • 二层消火栓起泵按钮平面图
  • 强弱电系统图
  • 基础接地布置平面图
  • 一层配电干线及弱电布置平面图
  • 二层配电干线及弱电布置平面图
  • 三层配电干线及弱电布置平面图
  • 四层配电干线及弱电布置平面图
  • 负一层配电干线平面图
  • 负一层照明配电平面图
  • 负一层消防报警平面图
  • 一层弱电布置平面图
  • 二层弱电布置平面图
  • 三层弱电布置平面图
  • ……

附件详情

该项目位于安徽省,项目为小学风雨操场、3#教学楼、1#科技楼、2#科技楼及报告厅。
风雨操场,地上两层公共建筑,高17.2米。该项目建筑类别为体育馆。设计内容:照明、电力、消火栓起泵按钮、防雷及基础接地等。
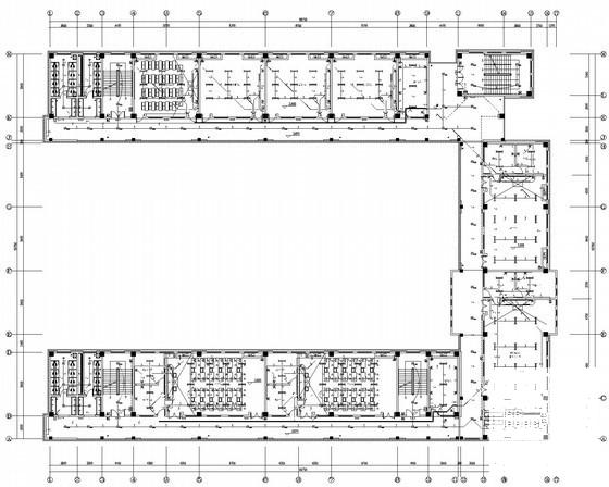
3#教学楼、1#科技楼、2#科技楼。该项目地上四层,功能为教室、试验室及办公用房等,建筑面积为7246平米。该项目为多层综合楼,高18.85米。设计内容:照明、电力、 防雷接地 、电话、宽带网、有线电视等。
报告厅地上三层,地下一层公共建筑,高16.8米,建筑面积3236平方米。该项目地下一层建筑类别为停车库和设备用房,地上三层为办公室和报告厅。设计内容:照明、电力、火灾自动报警系统、电话宽带网、防雷及基础接地等。
7月,图纸共45张。


负一层消防报警平面图

强弱电系统图

二层消火栓起泵按钮平面图

负一层照明配电平面图

基础接地布置平面图

配电系统图二

屋顶防雷布置平面图

消防设备电源监控系统图

一层照明配电平面图

小学科技楼 - 1
第 1 张图
小学科技楼 - 2
第 2 张图
小学科技楼 - 3
第 3 张图
小学科技楼 - 4
第 4 张图
小学科技楼 - 5
第 5 张图
小学科技楼 - 6
第 6 张图
小学科技楼 - 7
第 7 张图
以上是部分图纸截图,有些图框没有放大后再截图,可能截图里不清晰或者看不到内容,您可以在下载后查看具体内容

温馨提示:该资料由网友于2020-2-21 08:54:30上传分享,您可以下载该资料进行学习和参考,如有侵权内容或者违法行为,请及时联系站长删除,如有疑问,您可以在电气工程专区发帖交流相关知识。

附件2099v11edee2ccec2fsccffscf.rar

4.62 MB

下载  售价: 100 积分    赚积分

小学科技楼相关帖子

回复

使用道具 举报

您需要登录后才可以回帖 登录 | 立即注册

本版积分规则

QQ|联系我们|豆豆网 ( 苏ICP备20004746号-1 )

GMT+8, 2025-12-26 06:41 , Processed in 0.018475 second(s), 27 queries .

本站所有内容均由网友自主分享,如有侵权内容或者违法行为,请及时联系站长删除,本站将根据实际情况进行积分奖励!请查看:免责声明

快速回复 返回顶部 返回列表