豆豆网

 找回密码
 立即注册

QQ登录

只需一步,快速开始

查看: 1879|回复: 0

一份学校续建食堂风雨操场及综合楼给排水CAD施工图纸(热水系统)

[复制链接]

0

主题

0

帖子

1390

积分

超级版主

Rank: 8Rank: 8

积分
1390
发表于 2020-2-19 13:14:39 | 显示全部楼层 |阅读模式

该帖子包含附件可供参考学习和下载,您可以 搜索 更多您想要的资源


  • 附件设计说明:有

附件详情

  • 给排水设计说明
  • 给水系统图
  • 排水系统图
  • 消防栓原理图
  • 卫生间布置大样图
  • 雨水、阳台雨水、冷凝水系统图
  • 给排水平面图
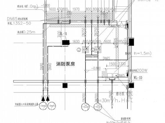
  • 设备房及消防水池详图
  • 消防栓原理图及气溶胶设计说明
  • 热水系统图
  • 排水预留洞定位图

附件详情

一、项目概要:
基地位于青岛经济技术开发区太行山路西侧,嘉陵江西路以南、香江路以北,开发区第四中学校园内。该项目占地面积63047m平方米平方米 总建筑面积20826.7m,地上建筑面积 20826.7m,地下建筑面积0m.综合教学楼建筑设计面积:14192.13m 地上四层, 建筑高度16.2m.
二、设计范围:
本专业设计内容包括生活给水系统、热水系统、污水系统、消火栓系统及灭火器配置。

给水系统图

热水系统图

设备房及消防水池详图

食堂综合楼给排水 - 1
第 1 张图
食堂综合楼给排水 - 2
第 2 张图
食堂综合楼给排水 - 3
第 3 张图
食堂综合楼给排水 - 4
第 4 张图
以上是部分图纸截图,有些图框没有放大后再截图,可能截图里不清晰或者看不到内容,您可以在下载后查看具体内容

温馨提示:该资料由网友于2020-2-19 13:14:39上传分享,您可以下载该资料进行学习和参考,如有侵权内容或者违法行为,请及时联系站长删除,如有疑问,您可以在给水排水专区发帖交流相关知识。

附件2099v11edew2fcfccw1ee10cdc.rar

6.16 MB

下载  售价: 100 积分    赚积分

食堂综合楼给排水相关帖子

回复

使用道具 举报

您需要登录后才可以回帖 登录 | 立即注册

本版积分规则

QQ|联系我们|豆豆网 ( 苏ICP备20004746号-1 )

GMT+8, 2025-12-28 05:47 , Processed in 0.020082 second(s), 27 queries .

本站所有内容均由网友自主分享,如有侵权内容或者违法行为,请及时联系站长删除,本站将根据实际情况进行积分奖励!请查看:免责声明

快速回复 返回顶部 返回列表