豆豆网

 找回密码
 立即注册

QQ登录

只需一步,快速开始

查看: 2252|回复: 0

一份大型3层幼儿园强弱电系统电气CAD施工图纸(火灾自动报警)

[复制链接]

0

主题

0

帖子

1384

积分

超级版主

Rank: 8Rank: 8

积分
1384
发表于 2020-2-21 13:13:00 | 显示全部楼层 |阅读模式

该帖子包含附件可供参考学习和下载,您可以 搜索 更多您想要的资源


  • 建筑类别:教育
  • 建筑高度类型:多层建筑
  • 建筑设计结构形式:钢筋混凝土结构
  • 建筑设计面积:8426平方米
  • 建筑地上层数:3层
  • 图纸设计深度:施工图
  • 参考图纸:20张
  • 设计年代:近代
  • 负荷等级:三级
  • 防雷等级:第二类
  • 火灾保护分级:二级
  • 接地方式:TN-C-S
  • 强电设计:低压配电,电气照明,建筑物防雷
  • 弱电设计: 火灾自动报警系统 ,综合布线系统,通信系统,有线电视和卫星接收系统,广播系统,信息网络系统

附件详情

  • 1、电气设计说明
  • 2、配电箱系统图
  • 3、弱电系统图
  • 4、火灾自动报警系统图
  • 5、电铃系统图
  • 6、照明动力平面图
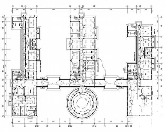
  • 7、 弱电平面图
  • 8、火灾自动报警平面图
  • 10、 防雷平面图

附件详情

该附件是大型幼儿园强弱电系统全套电气施工图纸,工程总建筑面积8426平方米,为20班大型幼儿园,地上三层,局部两层,总建筑高度12.35米。
电气设计包含低压配电系统设计、照明灯具布置、插座动力系统设计、火灾自动报警系统设计、防雷接地系统设计、综合布线系统设计、有线电视系统设计、电铃系统设计等。

火灾自动报警系统图

配电箱系统图

卫生间、淋浴室局部等电位联结大样图

一层插座平面图

三层火灾自动报警平面图

幼儿园强弱电电气 - 1
第 1 张图
幼儿园强弱电电气 - 2
第 2 张图
幼儿园强弱电电气 - 3
第 3 张图
幼儿园强弱电电气 - 4
第 4 张图
幼儿园强弱电电气 - 5
第 5 张图
幼儿园强弱电电气 - 6
第 6 张图
以上是部分图纸截图,有些图框没有放大后再截图,可能截图里不清晰或者看不到内容,您可以在下载后查看具体内容

温馨提示:该资料由网友于2020-2-21 13:13:00上传分享,您可以下载该资料进行学习和参考,如有侵权内容或者违法行为,请及时联系站长删除,如有疑问,您可以在电气工程专区发帖交流相关知识。

附件2099v11edec01121w1w0c2cdc0.rar

4.67 MB

下载  售价: 100 积分    赚积分

幼儿园强弱电电气相关帖子

回复

使用道具 举报

您需要登录后才可以回帖 登录 | 立即注册

本版积分规则

QQ|联系我们|豆豆网 ( 苏ICP备20004746号-1 )

GMT+8, 2025-12-22 03:39 , Processed in 0.018863 second(s), 27 queries .

本站所有内容均由网友自主分享,如有侵权内容或者违法行为,请及时联系站长删除,本站将根据实际情况进行积分奖励!请查看:免责声明

快速回复 返回顶部 返回列表