豆豆网

 找回密码
 立即注册

QQ登录

只需一步,快速开始

查看: 2349|回复: 0

一份11层大型宾馆消防给排水CAD图纸

[复制链接]

0

主题

0

帖子

1516

积分

超级版主

Rank: 8Rank: 8

积分
1516
发表于 2020-2-21 18:15:45 | 显示全部楼层 |阅读模式

该帖子包含附件可供参考学习和下载,您可以 搜索 更多您想要的资源


  • 建筑类别:宾馆酒店
  • 建筑地上层数:11层
  • 建筑地下层数:1层
  • 出图日期:2010
  • 设计阶段:施工图设计
  • 供水方式:市政供水
  • 供水分区:无
  • 污废水排水体制:合流
  • 设计内容:给排水,热水,消火栓,自动喷水

附件详情

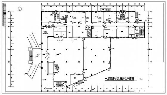
1、本建筑为高层宾馆,共十一层,为一类建筑。2、该项目为单体设计,建筑室外给排水工程,由总体设计统一考虑。3、该项目设计内容包括:生活冷热水、污水系统,雨水及空调冷凝水系统,消火栓给水系统、喷淋给水系统及建筑灭火器配置等。

第 1 张图
第 1 张图
第 2 张图
第 2 张图
第 3 张图
第 3 张图
第 4 张图
第 4 张图
以上是部分图纸截图,有些图框没有放大后再截图,可能截图里不清晰或者看不到内容,您可以在下载后查看具体内容

温馨提示:该资料由网友于2020-2-21 18:15:45上传分享,您可以下载该资料进行学习和参考,如有侵权内容或者违法行为,请及时联系站长删除,如有疑问,您可以在给水排水专区发帖交流相关知识。

附件2099v11edc0ddcce2c101edccc.rar

3.47 MB

下载  售价: 100 积分    赚积分

相关帖子

回复

使用道具 举报

您需要登录后才可以回帖 登录 | 立即注册

本版积分规则

QQ|联系我们|豆豆网 ( 苏ICP备20004746号-1 )

GMT+8, 2025-12-30 18:11 , Processed in 0.022122 second(s), 27 queries .

本站所有内容均由网友自主分享,如有侵权内容或者违法行为,请及时联系站长删除,本站将根据实际情况进行积分奖励!请查看:免责声明

快速回复 返回顶部 返回列表