豆豆网

 找回密码
 立即注册

QQ登录

只需一步,快速开始

查看: 2425|回复: 0

一份大型地下车库给排水给排水CAD图纸

[复制链接]

0

主题

0

帖子

1075

积分

超级版主

Rank: 8Rank: 8

积分
1075
发表于 2020-2-22 00:55:36 | 显示全部楼层 |阅读模式

该帖子包含附件可供参考学习和下载,您可以 搜索 更多您想要的资源


  • 附件设计说明:无

附件详情

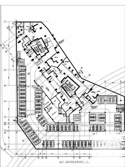
  • 地下一层给排水平面图
  • 地下一层消防给排水平面图
  • 地下二层给排水平面图
  • 地下二层消防给排水平面图
  • 消防水泵房及住宅给水泵房平面图
  • 消防水泵房及住宅给水泵房系统图、剖面图
  • 办公楼生活水泵房平面图,剖面图及系统图
  • 地下一层与T7、T8联络通道消防给水平面图

附件详情

项目概要:本项目位于广东,是知名广场地下停车库,一共两层,共有车位700个。
设计范围:生活给水系统 污水系统 热水系统 消火栓给水系统等。
,共计10张

地下二层消防给排水平面图

办公楼生活水泵房平面图、系统图

消防水泵房及住宅给水泵房系统图

大型车库给排水 - 1
第 1 张图
大型车库给排水 - 2
第 2 张图
大型车库给排水 - 3
第 3 张图
大型车库给排水 - 4
第 4 张图
以上是部分图纸截图,有些图框没有放大后再截图,可能截图里不清晰或者看不到内容,您可以在下载后查看具体内容

温馨提示:该资料由网友于2020-2-22 00:55:36上传分享,您可以下载该资料进行学习和参考,如有侵权内容或者违法行为,请及时联系站长删除,如有疑问,您可以在给水排水专区发帖交流相关知识。

附件2099v11edc00f0c0dewcee0f0s.rar

1.33 MB

下载  售价: 100 积分    赚积分

大型车库给排水相关帖子

回复

使用道具 举报

您需要登录后才可以回帖 登录 | 立即注册

本版积分规则

QQ|联系我们|豆豆网 ( 苏ICP备20004746号-1 )

GMT+8, 2025-12-29 02:16 , Processed in 0.015570 second(s), 27 queries .

本站所有内容均由网友自主分享,如有侵权内容或者违法行为,请及时联系站长删除,本站将根据实际情况进行积分奖励!请查看:免责声明

快速回复 返回顶部 返回列表