豆豆网

 找回密码
 立即注册

QQ登录

只需一步,快速开始

查看: 689|回复: 0

海安大型过滤池单体结构CAD施工图纸(预应力空心管桩复合地基)

[复制链接]

0

主题

0

帖子

1075

积分

超级版主

Rank: 8Rank: 8

积分
1075
发表于 2020-2-22 00:33:23 | 显示全部楼层 |阅读模式

该帖子包含附件可供参考学习和下载,您可以 搜索 更多您想要的资源


  • 建筑类别:其他
  • 建筑高度类型:单层建筑
  • 图纸设计深度:施工图
  • 民用建筑设计使用年限:50年
  • 建筑设计结构形式:其他结构
  • 特种结构:其他结构
  • 结构安全等级:二级
  • 抗震设防烈度:7度抗震
  • 风压:0.45kN/平方米
  • 雪压:0.25kN/平方米
  • 参考图纸:18张
  • 设计年代:近代

附件详情

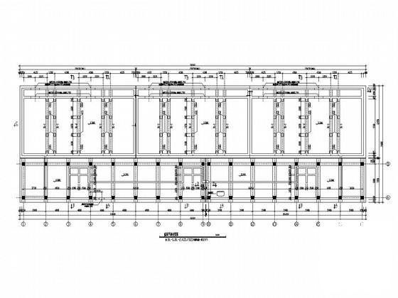
该项目为某大型的过滤池结构图,本单体采用预应力空心管桩复合地基,基础采用先张法预应力空心管桩,共计379根,单体设防烈度为7度,管廊为框架结构。
该资料包含: 结构设计说明 、桩基施工图、 平面布置图 、板配筋平面图、梁平法施工图等共18张图纸。
分享投稿时间:近几年4月。

底板平面布置图

板配筋平面图

柱平法施工图

预应力管桩施工图 - 1
第 1 张图
预应力管桩施工图 - 2
第 2 张图
预应力管桩施工图 - 3
第 3 张图
预应力管桩施工图 - 4
第 4 张图
以上是部分图纸截图,有些图框没有放大后再截图,可能截图里不清晰或者看不到内容,您可以在下载后查看具体内容

温馨提示:该资料由网友于2020-2-22 00:33:23上传分享,您可以下载该资料进行学习和参考,如有侵权内容或者违法行为,请及时联系站长删除,如有疑问,您可以在建筑施工专区发帖交流相关知识。

附件2099v11edfcwcc2cwsw1210edd.rar

2.05 MB

下载  售价: 100 积分    赚积分

预应力管桩施工图相关帖子

回复

使用道具 举报

您需要登录后才可以回帖 登录 | 立即注册

本版积分规则

QQ|联系我们|豆豆网 ( 苏ICP备20004746号-1 )

GMT+8, 2025-12-28 07:43 , Processed in 0.015788 second(s), 27 queries .

本站所有内容均由网友自主分享,如有侵权内容或者违法行为,请及时联系站长删除,本站将根据实际情况进行积分奖励!请查看:免责声明

快速回复 返回顶部 返回列表