豆豆网

 找回密码
 立即注册

QQ登录

只需一步,快速开始

查看: 2031|回复: 0

一份4层五星级会所酒店给排水CAD图纸(气体灭火大空间智能灭火)(冷却循环水系统)

[复制链接]

0

主题

0

帖子

1085

积分

超级版主

Rank: 8Rank: 8

积分
1085
发表于 2020-2-22 00:54:16 | 显示全部楼层 |阅读模式

该帖子包含附件可供参考学习和下载,您可以 搜索 更多您想要的资源


  • 附件设计说明:有
  • 建筑类别:商业,酒店
  • 建筑高度类型:多层建筑
  • 建筑设计结构形式:钢筋混凝土结构
  • 建筑设计面积:19660平方米
  • 建筑地上层数:4层
  • 建筑地下层数:1层
  • 图纸设计深度:施工图
  • 参考图纸:29张
  • 设计年代:近代
  • 生活供水设计:生活给水系统
  • 生产供水设计:热水系统
  • 排水设计:污水系统,废水系统,雨水系统
  • 消防设计:室外消火栓系统,室内消火栓系统,气体灭火系统
  • 供水设备:高位水箱
  • 供水方式:市政供水
  • 供水分区:无
  • 排水体制:污废分流,雨污分流
  • 排水技术:重力排水
  • 雨水重现期:10年
  • 火灾危险等级:中危险级Ⅱ级
  • 消火栓用水量室外(L/S):30
  • 消火栓用水量室内(L/S):20
  • 特殊系统:气体消防,消防炮
  • 大样节点:水箱,泵房,气体灭火,厨房,卫生间,集水坑
  • 热水供应方式:集中热水供应
  • 项目所在地:新疆

附件详情

  • 设计施工总说明
  • 地下车库给排水平面图
  • 地下一层给排水平面图
  • 一层给排水平面图
  • 二层给排水平面图
  • 三层给排水平面图
  • 阁楼层给排水平面图
  • 屋顶给排水平面图
  • 地下一层自动喷淋平面图
  • 一层自动喷淋平面图
  • 一层自动喷淋平面图
  • 二层自动喷淋平面图
  • 三层自动喷淋平面图
  • 阁楼层自动喷淋平面图
  • 地下室消防水泵房大样图
  • 地下室生活水泵房大样图
  • 屋顶消防水箱间大样图
  • 卫生间大样图
  • 生活给水管道系统图
  • 生活热水管道系统图
  • 消火栓给水管道系统图
  • 消火栓给水管道系统图
  • 自动喷淋给水管道系统图
  • 消防水炮给水管道系统图
  • 空调冷却循环水系统原理图
  • 排水管道系统图
  • 雨水管道系统图
  • 集水坑排水管道系统图

附件详情

:该项目位于新疆,由两层庭院式或组院式住宅、五星级酒店、会所及其他配套公建组成,总建筑面积147190平米。
该资料的范围为该项目酒店部分,总建筑面积为19668.44平方米,建筑占地面积为5656.37平方米,其中地下建筑面积为2643.30平方米,地上建筑面积为17025.14平方米。
设计范围:建筑物内给水系统、排水系统、消火栓系统、自动喷水灭火系统、大空间智能型主动喷水灭火系统、建筑灭火器配置的设计。
,共计29张图纸

地下车库给排水平面图

地下一层给排水平面图

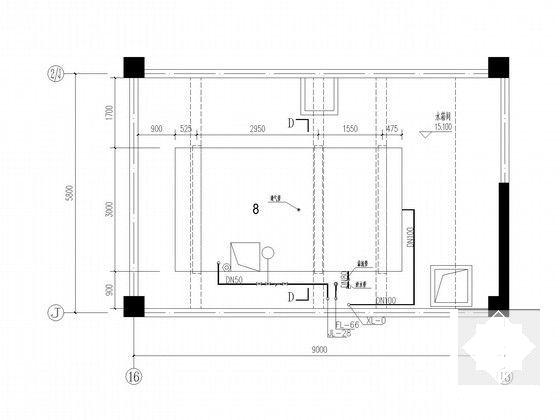
空调冷却循环水系统原理图

卫生间大样图

消防水箱间大样图

自动喷淋给水管道系统图

排水管道系统图

酒店会所给排水 - 1
第 1 张图
酒店会所给排水 - 2
第 2 张图
酒店会所给排水 - 3
第 3 张图
酒店会所给排水 - 4
第 4 张图
酒店会所给排水 - 5
第 5 张图
酒店会所给排水 - 6
第 6 张图
以上是部分图纸截图,有些图框没有放大后再截图,可能截图里不清晰或者看不到内容,您可以在下载后查看具体内容

温馨提示:该资料由网友于2020-2-22 00:54:16上传分享,您可以下载该资料进行学习和参考,如有侵权内容或者违法行为,请及时联系站长删除,如有疑问,您可以在给水排水专区发帖交流相关知识。

附件2099v11edc0sdccdedddc0c2d0.rar

5.18 MB

下载  售价: 100 积分    赚积分

酒店会所给排水相关帖子

回复

使用道具 举报

您需要登录后才可以回帖 登录 | 立即注册

本版积分规则

QQ|联系我们|豆豆网 ( 苏ICP备20004746号-1 )

GMT+8, 2025-12-31 12:54 , Processed in 0.017342 second(s), 27 queries .

本站所有内容均由网友自主分享,如有侵权内容或者违法行为,请及时联系站长删除,本站将根据实际情况进行积分奖励!请查看:免责声明

快速回复 返回顶部 返回列表