豆豆网

 找回密码
 立即注册

QQ登录

只需一步,快速开始

查看: 1462|回复: 0

一份6层图书馆强电系统CAD施工图纸(二级负荷)(电气设计说明)

[复制链接]

0

主题

0

帖子

1352

积分

超级版主

Rank: 8Rank: 8

积分
1352
发表于 2020-2-22 10:29:51 | 显示全部楼层 |阅读模式

该帖子包含附件可供参考学习和下载,您可以 搜索 更多您想要的资源


  • 建筑类别:文化
  • 建筑高度类型:多层建筑
  • 建筑设计结构形式:钢筋混凝土结构
  • 建筑设计面积:11275平方米
  • 建筑地上层数:5层
  • 建筑地下层数:1层
  • 图纸设计深度:施工图
  • 参考图纸:23张
  • 负荷等级:二级
  • 防雷等级:第三类
  • 接地方式:TN-S
  • 项目所在地:广东
  • 强电设计:低压配电,电气照明,建筑物防雷

附件详情

  • 1、 电气设计 说明
  • 2、电气结线系统图
  • 3、竖向配电系统图
  • 4、 照明平面图
  • 5、配电平面图
  • 6、插座平面图
  • 7、 防雷平面图

附件详情

该附件是[广州]图书馆全套 电气施工图 纸,总共23张。
该项目楼高21米(建筑屋面标高),地上5层,半地下1层,属二类低层建筑。总建筑面 积为: 11275M2。
设计内容包括变配电,电力、照明。

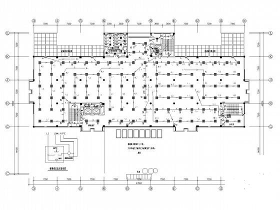
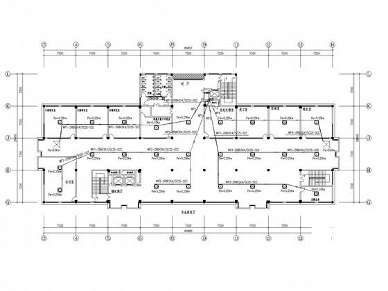
三-四层照明平面图

五层空调配电平面图

电气结线系统图

图书馆电气设计 - 1
第 1 张图
图书馆电气设计 - 2
第 2 张图
图书馆电气设计 - 3
第 3 张图
图书馆电气设计 - 4
第 4 张图
以上是部分图纸截图,有些图框没有放大后再截图,可能截图里不清晰或者看不到内容,您可以在下载后查看具体内容

温馨提示:该资料由网友于2020-2-22 10:29:51上传分享,您可以下载该资料进行学习和参考,如有侵权内容或者违法行为,请及时联系站长删除,如有疑问,您可以在电气工程专区发帖交流相关知识。

附件2099v11edecefcfse2f0fdc2e1.rar

854.23 KB

下载  售价: 100 积分    赚积分

图书馆电气设计相关帖子

回复

使用道具 举报

您需要登录后才可以回帖 登录 | 立即注册

本版积分规则

QQ|联系我们|豆豆网 ( 苏ICP备20004746号-1 )

GMT+8, 2025-12-30 18:47 , Processed in 0.017876 second(s), 28 queries .

本站所有内容均由网友自主分享,如有侵权内容或者违法行为,请及时联系站长删除,本站将根据实际情况进行积分奖励!请查看:免责声明

快速回复 返回顶部 返回列表