豆豆网

 找回密码
 立即注册

QQ登录

只需一步,快速开始

查看: 2051|回复: 0

15层电梯公寓电气CAD施工图纸

[复制链接]

0

主题

0

帖子

629

积分

超级版主

Rank: 8Rank: 8

积分
629
发表于 2020-2-22 10:33:55 | 显示全部楼层 |阅读模式

该帖子包含附件可供参考学习和下载,您可以 搜索 更多您想要的资源


  • 建筑类别:住宅
  • 建筑高度类型:高层建筑
  • 建筑设计结构形式:钢筋混凝土结构
  • 建筑设计面积:12000平方米
  • 建筑地上层数:15层
  • 建筑地下层数:1层
  • 图纸设计深度:施工图
  • 参考图纸:33张
  • 地下室用途:车库
  • 负荷等级:二级
  • 防雷等级:第二类
  • 火灾保护分级:二级
  • 接地方式:TN-S
  • 项目所在地:四川
  • 强电设计:供配电系统,配变电所,低压配电,电气照明,建筑物防雷,接地安全,电气控制
  • 弱电设计: 火灾自动报警系统 ,出入口控制系统,通信系统,有线电视和卫星接收系统,信息网络系统

附件详情

  • 一、电气设计说明
  • 二、低压配电系统图
  • 三、 竖向配电干线 系统图
  • 四、配电箱系统图
  • 五、弱电系统图
  • 六、照明电气平面图
  • 七、 弱电平面图
  • 八、消防报警平面图
  • 九、防雷接地平面图

附件详情

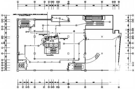
本稿件是四川某十五层电梯公寓电气施工图纸,地上十五层,一层层高4.20米、二三层层3.9米,四~十五层层高3.0米,一~三层为商业,四~十五层均为住宅;屋顶设有电梯机房及水箱间;建筑主体高度48米,总建筑面积为12000平方米。建筑设计结构形式为框架剪力墙结构,现浇混凝土楼板。电气设计包含变配电系统、配电系统、照明系统、插座动力、有线电视、可视对讲、消防报警、防雷接地系统。

第 1 张图
第 1 张图
第 2 张图
第 2 张图
第 3 张图
第 3 张图
第 4 张图
第 4 张图
以上是部分图纸截图,有些图框没有放大后再截图,可能截图里不清晰或者看不到内容,您可以在下载后查看具体内容

温馨提示:该资料由网友于2020-2-22 10:33:55上传分享,您可以下载该资料进行学习和参考,如有侵权内容或者违法行为,请及时联系站长删除,如有疑问,您可以在电气工程专区发帖交流相关知识。

附件2099v11edecc20cdswe2fdee2c.rar

2.35 MB

下载  售价: 100 积分    赚积分

相关帖子

回复

使用道具 举报

您需要登录后才可以回帖 登录 | 立即注册

本版积分规则

QQ|联系我们|豆豆网 ( 苏ICP备20004746号-1 )

GMT+8, 2025-12-21 02:47 , Processed in 0.015296 second(s), 27 queries .

本站所有内容均由网友自主分享,如有侵权内容或者违法行为,请及时联系站长删除,本站将根据实际情况进行积分奖励!请查看:免责声明

快速回复 返回顶部 返回列表