豆豆网

 找回密码
 立即注册

QQ登录

只需一步,快速开始

查看: 2060|回复: 0

[CAD]一类高层住宅楼电气图纸49张

[复制链接]

0

主题

0

帖子

1359

积分

超级版主

Rank: 8Rank: 8

积分
1359
发表于 2020-2-22 11:45:40 | 显示全部楼层 |阅读模式

该帖子包含附件可供参考学习和下载,您可以 搜索 更多您想要的资源


  • 建筑类别:住宅
  • 建筑高度类型:高层建筑
  • 建筑设计结构形式:钢筋混凝土结构
  • 建筑设计面积:31373平方米
  • 建筑地上层数:29层
  • 建筑地下层数:1层
  • 图纸设计深度:施工图
  • 负荷等级:一级
  • 防雷等级:第二类
  • 强电设计:低压配电,电气照明,建筑物防雷,接地安全
  • 弱电设计: 火灾自动报警系统 ,视频监控系统,出入口控制系统,综合布线系统,通信系统,有线电视和卫星接收系统

附件详情

  • 1、电气设计说明
  • 2、竖向配电系统图
  • 3、配电箱系统图
  • 4、有线电视系统图
  • 5、可视对讲系统图
  • 6、视频监控系统图
  • 7、火灾报警与消防控制系统图
  • 8、综合布线系统图
  • 9、插座平面图
  • 10、电信平面图
  • 11、建筑 防雷平面图
  • 12、综合接地平面图
  • 13、火灾报警与消防控制平面图

附件详情

该附件是一类高层住宅楼全套电气图纸,总共49张。
该项目是由两个住宅单元组成,5号楼地上29层,地下1层,一个地下夹层,住宅部分共116套。该项目总建筑面积为31373平方米,其中地下810平方米,地上20563平方米;总建筑高度为87.65米,属于一类高层住宅楼。建筑设计结构形式为筏板基础、剪力墙结构、现浇混凝土楼板。
该资料范围包括:低压配电系统;电力配电系统;照明配电系统;综合布线系统;有线电视系统;楼宇访客对讲系统;火灾报警及消防控制系统;视频监控系统;防雷与综合接地系统。

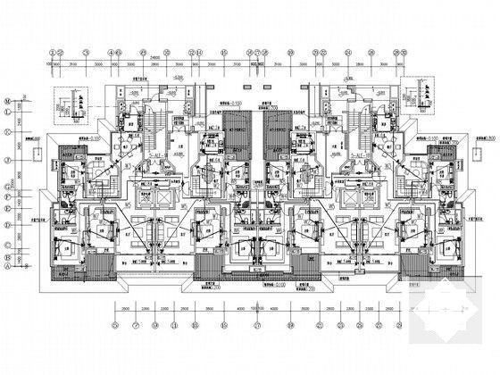
六~二十八层偶数层 照明平面图

六~二十八层偶数层电信平面图

一层插座平面图

综合接地平面图

屋顶平面图

地下一层火灾报警与消防控制平面图

第 1 张图
第 1 张图
第 2 张图
第 2 张图
第 3 张图
第 3 张图
第 4 张图
第 4 张图
第 5 张图
第 5 张图
第 6 张图
第 6 张图
以上是部分图纸截图,有些图框没有放大后再截图,可能截图里不清晰或者看不到内容,您可以在下载后查看具体内容

温馨提示:该资料由网友于2020-2-22 11:45:40上传分享,您可以下载该资料进行学习和参考,如有侵权内容或者违法行为,请及时联系站长删除,如有疑问,您可以在电气工程专区发帖交流相关知识。

附件2099v11edececee2010ef0202f.rar

9.06 MB

下载  售价: 100 积分    赚积分

相关帖子

回复

使用道具 举报

您需要登录后才可以回帖 登录 | 立即注册

本版积分规则

QQ|联系我们|豆豆网 ( 苏ICP备20004746号-1 )

GMT+8, 2025-12-29 04:23 , Processed in 0.015823 second(s), 28 queries .

本站所有内容均由网友自主分享,如有侵权内容或者违法行为,请及时联系站长删除,本站将根据实际情况进行积分奖励!请查看:免责声明

快速回复 返回顶部 返回列表