豆豆网

 找回密码
 立即注册

QQ登录

只需一步,快速开始

查看: 2383|回复: 0

[CAD]4层框架结构教学楼毕业设计方案图纸(结构设计、建筑设计)

[复制链接]

0

主题

0

帖子

1096

积分

超级版主

Rank: 8Rank: 8

积分
1096
发表于 2020-2-22 13:30:07 | 显示全部楼层 |阅读模式

该帖子包含附件可供参考学习和下载,您可以 搜索 更多您想要的资源


附件详情

该附件为四层的教学楼毕业设计,建筑层数为4层,建筑总高度为16.6米,室内外高差为0.45米,该项目上部结构为钢筋混凝土框架结构,基础形式为独立基础,设防烈度为7度。
资料包括: 结构设计说明 、结构 平面布置图 、板配筋图、梁配筋图、一品框架配筋图、楼梯布置图、建筑设计说明、平面图、立面图、剖面图等共12张图纸和71张计算书。
设计完成时间:近代.06。

标准层梁配筋图

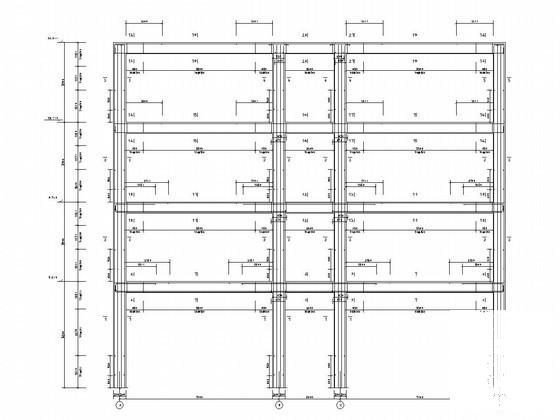
标准层结构平面布置图

一榀框架平面配筋图

第 1 张图
第 1 张图
第 2 张图
第 2 张图
第 3 张图
第 3 张图
第 4 张图
第 4 张图
以上是部分图纸截图,有些图框没有放大后再截图,可能截图里不清晰或者看不到内容,您可以在下载后查看具体内容

温馨提示:该资料由网友于2020-2-22 13:30:07上传分享,您可以下载该资料进行学习和参考,如有侵权内容或者违法行为,请及时联系站长删除,如有疑问,您可以在建筑设计专区发帖交流相关知识。

附件2099v11ede0cd220df2esc1sd0.rar

865.96 KB

下载  售价: 100 积分    赚积分

相关帖子

回复

使用道具 举报

您需要登录后才可以回帖 登录 | 立即注册

本版积分规则

QQ|联系我们|豆豆网 ( 苏ICP备20004746号-1 )

GMT+8, 2025-12-27 23:17 , Processed in 0.016794 second(s), 27 queries .

本站所有内容均由网友自主分享,如有侵权内容或者违法行为,请及时联系站长删除,本站将根据实际情况进行积分奖励!请查看:免责声明

快速回复 返回顶部 返回列表