| 
 该帖子包含附件可供参考学习和下载,您可以 搜索 更多您想要的资源   
 
  - 
   附件设计说明:有
  
 
  - 
   建筑类别:教育
  
 
  - 
   建筑高度类型:高层建筑
  
 
  - 
   建筑设计结构形式:其他结构
  
 
  - 
   建筑设计面积:18980平方米
  
 
  - 
   建筑地上层数:12层
  
 
  - 
   建筑地下层数:1层
  
 
  - 
   图纸设计深度:施工图
  
 
  - 
   参考图纸:34张
  
 
  - 
   设计年代:近代
  
 
  - 
   地下室用途:设备用房,其它
  
 
  - 
   生活供水设计:生活给水系统
  
 
  - 
   生产供水设计:热水系统
  
 
  - 
   排水设计:污水系统,废水系统,雨水系统
  
 
  - 
   消防设计:室外消火栓系统,室内消火栓系统,喷淋系统
  
 
  - 
   供水设备:水泵站
  
 
  - 
   供水方式:市政供水,变频供水,分区供水
  
 
  - 
   供水分区:两区
  
 
  - 
   排水体制:污废分流,雨污分流
  
 
  - 
   排水技术:重力排水
  
 
  - 
   火灾危险等级:中危险级Ⅰ级
  
 
  - 
   消火栓用水量室外(L/S):30
  
 
  - 
   消火栓用水量室内(L/S):40
  
 
  - 
   特殊系统:太阳能热水系统
  
 
  - 
   大样节点:泵房,卫生间,集水坑
  
 
  - 
   热水供应方式:集中热水供应
  
 
  - 
   项目所在地:安徽
  
 
  
 
  
   附件详情
   
  
   - 
    给排水设计说明
   
 
   - 
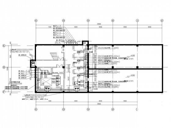
    一层给排水平面图
   
 
   - 
    二层给排水平面图
   
 
   - 
    三层给排水平面图
   
 
   - 
    四层给排水平面图
   
 
   - 
    ……
   
 
   - 
    十二层给排水平面图
   
 
   - 
    一层自动喷淋平面图
   
 
   - 
    二层自动喷淋平面图
   
 
   - 
    三层自动喷淋平面图
   
 
   - 
    四层自动喷淋平面图
   
 
   - 
    ……
   
 
   - 
    十二层自动喷淋平面图
   
 
   - 
    给排水系统原理图
   
 
   - 
    排水系统原理图
   
 
   - 
    雨水、空调冷凝水系统原理图
   
 
   - 
    空调冷凝水系统原理图
   
 
   - 
    消防给水系统原理图
   
 
   - 
    喷淋给水系统原理图
   
 
   - 
    热水设备系统原理图
   
 
   - 
    卫生间大样图
   
 
   - 
    泵房
    
     平面布置图
    
   
 
   - 
    消火栓泵组展开系统图
   
 
   - 
    集水坑排水系统原理图
   
 
   
  
 
  
   附件详情
   
  
   项目概要:本项目位于安徽,是一栋中学综合楼;总建筑面积18980.1平方米,其中地下建筑面积为447.2平方米,地上建筑面积为18532.9平方米,建筑基底面积2459.1平米;地上12层,局部地下室1层(设备用房),建筑高度49.35米;建筑建筑设计结构形式为框架剪力墙结构,合理使用年限50年;建筑分类:一类高层建筑耐火等级为一级;
    
   该项目设有室内生活给排水系统、雨水系统、
   
    消防系统
   
   、喷淋系统、热水系统。
    
   ,共34张。
    
    
    
   
  
   
  
   
    泵房平面布置图
    
   
    卫生间大样图
    
   
    集热器安装侧视大样图
    
   
    排水系统原理图
    
   
    消火栓及喷淋给水系统原理图
    
   
    给排水系统原理图
    
   
  
 
第 1 张图   
第 2 张图   
第 3 张图   
第 4 张图   
第 5 张图   
第 6 张图   以上是部分图纸截图,有些图框没有放大后再截图,可能截图里不清晰或者看不到内容,您可以在下载后查看具体内容 
 
 温馨提示:该资料由网友于2020-2-23 10:26:15上传分享,您可以下载该资料进行学习和参考,如有侵权内容或者违法行为,请及时联系站长删除,如有疑问,您可以在给水排水专区发帖交流相关知识。
 
	
 |