豆豆网

 找回密码
 立即注册

QQ登录

只需一步,快速开始

查看: 1891|回复: 0

小学给排水施工图纸cad平面图

[复制链接]

0

主题

0

帖子

1193

积分

超级版主

Rank: 8Rank: 8

积分
1193
发表于 2021-10-26 20:48:59 | 显示全部楼层 |阅读模式

该帖子包含附件可供参考学习和下载,您可以 搜索 更多您想要的资源


  • 建筑类别:教育
  • 建筑高度类型:多层建筑
  • 建筑设计结构形式:钢筋混凝土结构
  • 图纸设计深度:施工图
  • 图纸设计格式:CAD2000
  • 设计年代:近代
  • 生活供水设计:生活给水系统
  • 生产供水设计:热水系统
  • 排水设计:污水系统,废水系统,雨水系统
  • 消防设计:室外消火栓系统,室内消火栓系统,灭火器配置系统
  • 供水方式:市政供水
  • 排水体制:污废合流,雨污分流
  • 排水技术:重力排水
  • 消火栓用水量室外(L/S):30
  • 消火栓用水量室内(L/S):15
  • 项目所在地:贵州
1、项目概要:该项目为 贵州省小学 给排水施工图
2、设计内容:室内给排水及消防系统。
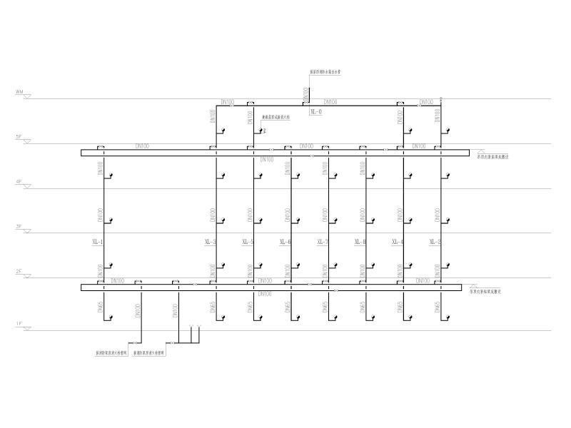
部分图纸展示:
二层给排水、消防平面图.jpg
五层给排水、消防平面图.jpg
一层给排水、消防平面图.jpg
给排水管道系统原理图.jpg
消火栓管道系统原理图.jpg
二层给排水、消防平面图
二层给排水、消防平面图
五层给排水、消防平面图
五层给排水、消防平面图
一层给排水、消防平面图
一层给排水、消防平面图
给排水管道系统原理图
给排水管道系统原理图
消火栓管道系统原理图
消火栓管道系统原理图
以上是部分图纸截图,有些图框没有放大后再截图,可能截图里不清晰或者看不到内容,您可以在下载后查看具体内容

附件2099v11cdfw0cccs2sw11se.rar

2.31 MB

下载  售价: 100 积分    赚积分

相关帖子

回复

使用道具 举报

您需要登录后才可以回帖 登录 | 立即注册

本版积分规则

QQ|联系我们|豆豆网 ( 苏ICP备20004746号-1 )

GMT+8, 2025-12-29 03:20 , Processed in 0.016823 second(s), 27 queries .

本站所有内容均由网友自主分享,如有侵权内容或者违法行为,请及时联系站长删除,本站将根据实际情况进行积分奖励!请查看:免责声明

快速回复 返回顶部 返回列表