豆豆网

 找回密码
 立即注册

QQ登录

只需一步,快速开始

查看: 1756|回复: 0

中学校园升级改造工程给排水施工大样图cad平面图及系统图

[复制链接]

0

主题

0

帖子

1075

积分

超级版主

Rank: 8Rank: 8

积分
1075
发表于 2021-10-26 20:58:41 | 显示全部楼层 |阅读模式

该帖子包含附件可供参考学习和下载,您可以 搜索 更多您想要的资源


  • 建筑类别:教育
  • 建筑高度类型:单层建筑
  • 建筑设计结构形式:钢筋混凝土结构
  • 图纸设计深度:施工图
  • 图纸设计格式:CAD2000
  • 设计年代:近代
  • 生活供水设计:生活给水系统
  • 生产供水设计:热水系统
  • 排水设计:污水系统,废水系统
  • 消防设计:室外消火栓系统,室内消火栓系统,灭火器配置系统
  • 供水方式:市政供水
  • 项目所在地:广东
1、项目概要:该项目为 广东省中学校园升级改造工程 给排水施工图
2. 设计范围:卫生间及厨房二次装修生活给水及排水设计。
部分图纸展示:
首层厨房设备排水升级改造平面图.jpg
四、六层成人男厕给水系统图.jpg
一、二、三、五层女厕给水大样图.jpg
一层男厕排水大样图.jpg
一层女厕排水大样图.jpg
首层厨房设备排水升级改造平面图
首层厨房设备排水升级改造平面图
四、六层成人男厕给水系统图
四、六层成人男厕给水系统图
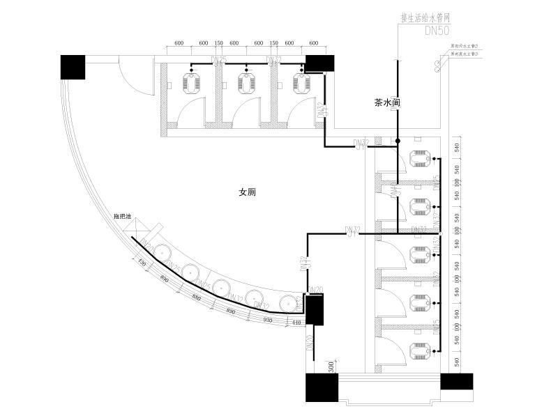
一、二、三、五层女厕给水大样图
一、二、三、五层女厕给水大样图
一层男厕排水大样图
一层男厕排水大样图
一层女厕排水大样图
一层女厕排水大样图
以上是部分图纸截图,有些图框没有放大后再截图,可能截图里不清晰或者看不到内容,您可以在下载后查看具体内容

附件2099v11cdfcfc1wf20wwds2.zip

18.23 MB

下载  售价: 100 积分    赚积分

相关帖子

回复

使用道具 举报

您需要登录后才可以回帖 登录 | 立即注册

本版积分规则

QQ|联系我们|豆豆网 ( 苏ICP备20004746号-1 )

GMT+8, 2025-12-27 21:11 , Processed in 0.017067 second(s), 27 queries .

本站所有内容均由网友自主分享,如有侵权内容或者违法行为,请及时联系站长删除,本站将根据实际情况进行积分奖励!请查看:免责声明

快速回复 返回顶部 返回列表